
1 080 000 €
1 080 000 €
| Verkaufspreis | 1 080 000 € |
| Preis pro qm | 7 500 € |
| Fläche | 144 m² |
| Etage | 2 |
| Gesamtzahl der Zimmer | 2 |
| Anzahl der Schlafzimmer | 2 |
| Anzahl der Badezimmer | 2 |
| Bauphase | Im Bau |
| Adresse | Kroatien, Opatija |
| Typ | Zwei-Zimmer-Wohnung |
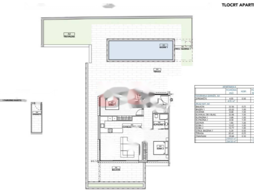
Geräumige Wohnungen von 144 m2 in einer modernen Wohnanlage bieten hochwertige Bauweise und Ausstattung. Liegt in einer prestigeträchtigen Gegend mit Panoramablick auf das Meer, nur wenige Gehminuten vom Strand entfernt.
Die Wohnung verfügt über einen komfortablen und funktionalen Innenraum mit einer Gesamtnutzfläche von 76,57 m2, bestehend aus:
Zu den weiteren Annehmlichkeiten gehören ein 14,78 m² großer Innen- und Außenbalkon sowie ein angrenzender Bereich mit Garten, Swimmingpool und Fußgängerzone. Die Gesamtnutzfläche dieser Zonen beträgt 52,66 m2. Für Ihren Komfort verfügt der Komplex über einen modernen Aufzug.
Die Beheizung erfolgt individuell mit einer Fußbodenheizung, sowie einer Wärmepumpe zum Kühlen und Heizen. Es werden hochwertige Aluminiumfenster, Sanitärkeramik und Keramik namhafter Hersteller verwendet, was Langlebigkeit und Komfort garantiert.
Autobesitzern stehen auf dem Gemeinschaftsparkplatz zwei Parkplätze zur Verfügung. Die Wohnung ist ideal für diejenigen, die Komfort und Qualität in einer der besten Unterkünfte schätzen.