
340 000 €
340 000 €
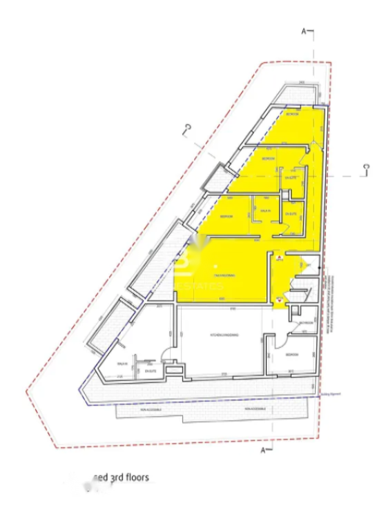
Schlafzimmer: 3, Badezimmer: 2, Innenfläche: 101 m², Außenbereich: 28 m², Gesamtfläche: 110 m²
Das seitlich gelegene Apartment verfügt über einen offenen Küchen-/Wohn-/Essbereich, drei Schlafzimmer (zwei davon mit eigenem Bad und das Hauptschlafzimmer mit begehbarem Kleiderschrank), ein Hauptbadezimmer, zwei Veranden und eine Terrasse mit Blick auf die Landschaft.
Die Immobilie wird bis auf Badezimmer und Innentüren vollständig fertiggestellt verkauft. Die Fertigstellung ist für Ende 2025 geplant. Eigentum: frei.