
724 000 €
724 000 €
| Zusätzliche Transaktionskosten | |
|---|---|
| Nicht im Preis inbegriffen verkaufen |
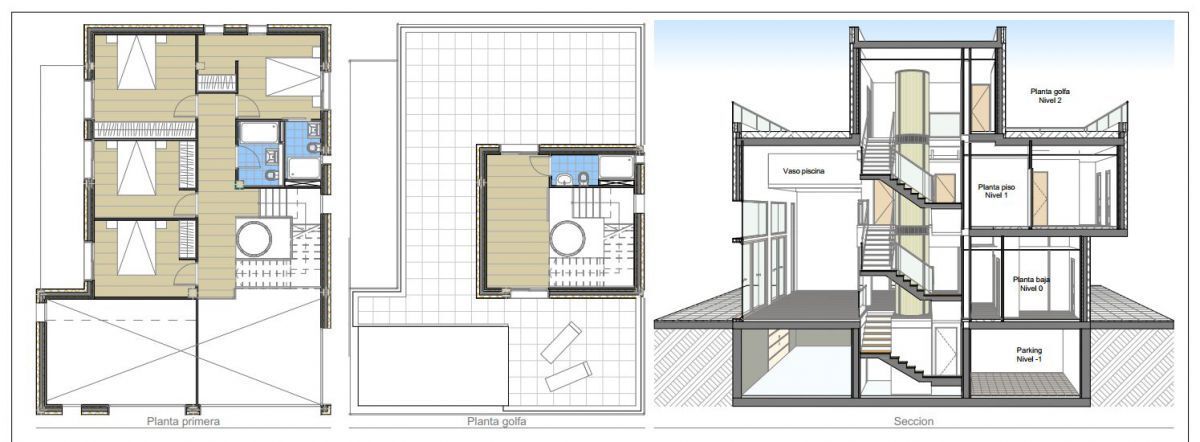
Spanien. Ein neuer Komplex von Stadthäusern in Montgata. Montgat, Costa Maresme 724.000 Schlafzimmer 5 Badezimmer 4 REF MSM35 Neuer Häuserkomplex und Stadthäuser in der Stadt El Montgat auf der Costa Maresme. Der Komplex besteht aus 5 freistehenden Häusern mit einem Bereich von etwa 464 m². Das Haus verfügt über 5 Schlafzimmer, 4 Badezimmer, ein geräumiges Wohnzimmer, eine Terrasse, eine Garage für 2 Autos, eine voll ausgestattete moderne Küche und einen Garten mit einem Schwimmbad. Der Preis beginnt von 832.600 €. Es gibt auch 14 Stadthäuser mit einer Fläche von 344 Quadratmetern auf dem Gebiet des Komplexes. Das Haus verfügt über 4 Schlafzimmer, 5 Badezimmer, eine moderne Küche und eine Terrasse mit Whirlpool. Der Komplex bietet Blick auf die Berge und das Meer. Swimming Pool Garden Balkon oder Terrasse Parkklimaanlage Wir verkaufen Ihre Wohnung oder Ihr Haus. Es gibt eine Auswahl an Wohnungen und Häusern in verschiedenen Budgets, einschließlich kommerzieller.