
1 100 000 €
1 100 000 €
| Precio de venta | 1 100 000 € |
| Superficie de la сasa | 650 m² |
| Superficie de la parcela | 650 m² |
| Número de dormitorios | 2 |
| Número de baños | 4 |
| Dirección | Croacia, Sucuraj |
Un proyecto único de renovación: primera línea Palazzo -fortaleza en la isla de Hvar en la ciudad de Sucuraj!
solo 20 minutos en un ferry de Sucuraj a Drvenik on ¡Continente!
¡Es una de las propiedades más inusuales que hemos visto en el mercado inmobiliario croata desde 2004!
del sitio con ruinas 650 M2.
Hay un proyecto para la restauración del palazzo con su área de 650 m2, un jardín interno de 200 m2 y una piscina de 50 m2, rodeada de muros de piedra de cuatrocientos años.
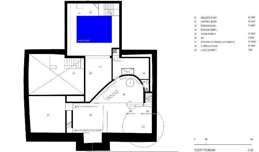
Según el proyecto de renovación, la fortaleza de la villa debe consistir en varios niveles:
nivel inferior: piscina interior, área de spa, área de bienestar, cocina de verano, taberna, baño, baño, Hall.
El primer nivel: un salón, un baño, una habitación que se viva con un área de cocina, una terraza.
segundo nivel: dos dormitorios, dos baños, salón, vestidor
En el patio hay una piscina al aire libre, una terraza de cubierta de sol junto a la piscina y una zona de cocina de verano con baño.
La isla de Hvar es una de las más románticas y lugares pintorescos en Dalmatia.
Sobre el hecho de la renovación, será una de las propiedades más inusuales y notables en todas las Croacia.
Ref: Re-LB-IRO1284Gastos adicionales generales transmitidos por los El comprador de bienes raíces en Croacia es alrededor del 7% del costo de la propiedad en total, que incluye: impuesto de transferencia de propiedad (3% del valor de la propiedad), comisión de agencia/corretaje (3%+IVA sobre Comisión), Tarifa de abogado (CCA 1%), tarifa notarial, tarifa de registro de la corte y gastos de traducción certificados oficiales. El acuerdo de agencia/corretaje está firmado antes de visitar propiedades.