
630 000 €
630 000 €
Villa moderna en construcción en un entorno de Poreč, con vistas al mar distantes, CCA. A 7 km del mar.
El área total es de 161 metros cuadrados. La parcela de tierra es de 800 metros cuadrados
en las cercanías de la ciudad de Poreč, ofreciendo un equilibrio perfecto de los alrededores rurales y la proximidad a las instalaciones urbanas, lo suficientemente lejos de las multitudes y el ruido, pero aún cerca de todas las instalaciones necesarias para un Estancia durante todo el año, un nuevo edificio de diseño moderno con una piscina está a la venta. Además de la ubicación que proporciona comodidad completa, la propiedad también se distingue por la calidad de la construcción, que garantiza la satisfacción a largo plazo y la calidad de vida, así como un diseño moderno que se caracteriza por una forma geométrica regular y líneas regulares en el espacio, así como un interior con un plano de planta compacto y un espacio aireado.
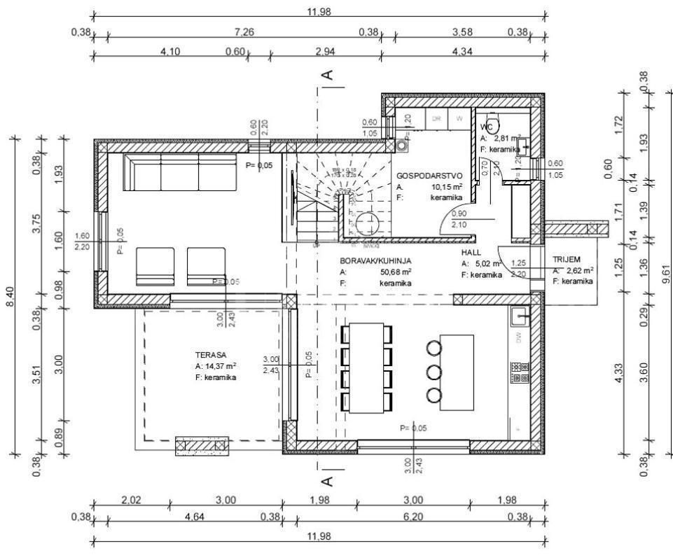
Esta villa de diseño contemporánea está diseñada como una unidad residencial que se extiende en dos pisos; planta baja y primer piso.
La planta baja de la villa consiste en una cocina, comedor y sala de estar con acceso a una terraza cubierta, un inodoro de huéspedes y una sala técnica con una sala de lavandería.
El piso superior consta de tres habitaciones. Todas las habitaciones tienen sus propios baños, y dos habitaciones tienen acceso a una terraza cubierta con vista al mar y los alrededores.
El patio está ajardinado y horticulturalmente ajardinado y cercado y contiene una piscina con un área para tomar el sol y espacios de estacionamiento. La ubicación, la estructura y la comodidad hacen de esta propiedad una oportunidad ideal para una vida familiar pacífica, así como una inversión con el fin de alquiler turístico. El vendedor de la propiedad en cuestión es una entidad legal, y el precio declarado se refiere a la fase llave en mano.
Los gastos adicionales generales generados por el comprador de bienes raíces en Croacia son alrededor del 7% del costo de propiedad en total, lo que incluye: Impuesto de transferencia de propiedades (3% del valor de la propiedad), Comisión de Agencia/Brokera (3%+IVA de la comisión), Tarifa de defensor (CCA 1%), tarifa notaria, tarifa de registro de la corte y gastos oficiales de traducción certificada. El acuerdo de agencia/corretaje está firmado antes de visitar propiedades.