
1 250 000 €
1 250 000 €
Para la venta una villa de 2 pisos con un área de 182 metros cuadrados en la península de Kassandra, la región de Halkidiki en construcción. La planta baja consiste en una sala de estar, una cocina, un baño.
El segundo piso consta de 3 dormitorios, 3 duchas.
La villa tiene una ubicación de esquina. Las ventanas ofrecen magníficas vistas del mar, las montañas y el bosque. La instalación tiene paneles solares para calentar agua, chimenea, aire acondicionado, toldos, área de barbacoa, calefacción. La instalación tiene un sistema de alarma instalado. La propiedad incluye un espacio de estacionamiento, jardín, garaje. Hay una piscina privada en el sitio.
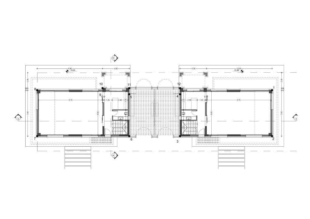
En venta dos villas de lujo autónomo en una parcela de 5,000 metros cuadrados. En Sani, Halkidiki, que están en construcción. Cada villa tiene un área de 182 metros cuadrados. y se divide en 2 niveles: el primer piso es de 100 metros cuadrados. y el segundo piso es de 82 metros cuadrados. Área en el segundo piso de 20 metros cuadrados, una pérgola bioclimática con un área de barbacoa de 27 metros cuadrados, espacios de estacionamiento para 2 autos de 36 metros cuadrados. y una trama privada de 2.500 metros cuadrados.
La ubicación es ideal para las vacaciones relajantes y despreocupadas. Las villas están ubicadas en un ambiente natural y pacífico rodeado de lagos y bosques de pinos, con vistas al mar, los lagos y el Monte Olimpo.
Cada villa bioclimática está construida con materiales europeos de alta calidad. They have zero energy consumption and are equipped with external thermal insulation, autonomous underfloor heating and hot water with a heat pump combined with a solar system, cooling and heating with VRV (air conditioning), an energy-efficient fireplace, aluminum exterior frames from Alumil, bulletproof glass, mesh, armored entrance door, CCTV cameras, alarm system, satellite antenna, smart home system, premium Italian and Azulejos españoles, escaleras de mármol, muebles de cocina para elegir (acrílico o laminado), puertas interiores masivas con marcos de aluminio, barandas de terraza hechas de vidrio triplex. También hay una instalación para el intercambio de aire interior, una instalación para un jacuzzi y una instalación para 36 metros cuadrados. photovoltaic panels.
The lighting is designed by professional architects to beautify and highlight these modern residences.
Bathrooms have built-in faucets for bathtubs and sinks, built-in cisterns, shower cabins with triplex glass, sinks of your choice (Korean or porcelain).
The El área multifuncional semi-abierta le permite crear un gimnasio con varias instalaciones como un jacuzzi. Esta área es única, ya que ofrece magníficas vistas del mar y los lagos.
El área exterior tiene una pérgola bioclimática con iluminación ajustable (control remoto), un área de barbacoa con un área de comedor al aire libre, una superficie de trabajo y un fregadero. El jardín está diseñado por el arquitecto para ser sostenible, enfatizando la amabilidad y la sostenibilidad ambiental. Incluye varios tipos de árboles, plantas, arbustos, césped, rocas, iluminación y un sistema de riego con riego automático. La puerta de entrada principal de la cerca es automática.
Precio de venta: 1,250,000 euros por villa alquiler de la residencia: diciembre de 2024