Immobili in Europa

1/12
118 500 €
Appartamento a Antalya, Turchia
95 m2 3 2 2
Visita online Transazione a distanza Pagamento in criptovalute Immobile in affitto
Appartamento duplex nel centro città, costruito nel 2024. Tutti gli finiture sono fatti, la cucina è attrezzata, il nostro servizio post-vendita aiuta ad acquistare i mobili. La casa è gassificata. Parcheggio sotterraneo A pochi passi dal centro commerciale Özdilek, dalle fermate della scuola e dei trasporti pubblici
NV-COMPANY
1/16
750 000 €
Villa sul Lago d'Iseo, Italia
230 m2 6 3 3
Visita online Transazione a distanza
immerso in un ambiente naturale ben tenuto, questa singola villa è una proprietà che soddisfa una varietà di bisogni. La villa è circondata da un giardino ben piantato pieno di varie essenze di fiori e ulivi, che danno un'atmosfera di tranquillità. Dalla passerella pedonale ci troviamo di fronte a una sala d'ingresso luminosa e accogliente,...
GH Estate
1/18
154 500 €
Appartamento a Antalya, Turchia
90 m2 3 2 2
Visita online Transazione a distanza Pagamento in criptovalute Immobile in affitto
Bellissimo appartamento in un nuovo edificio. L'appartamento ha due camere da letto, un soggiorno, 2 balconi, 2 bagni e una cucina separata. La cucina è attrezzata e venduta come mostrato nella foto. Vantaggi aggiuntivi: Non vi è alcun costo per pagare le tasse durante la registrazione dei diritti di proprietà Riscaldamento a...
NV-COMPANY
1/16
600 000 €
Appartamento a Riga, Lettonia
242 m2 6 4 3
In vendita è un appartamento esclusivo di 6 camere in un bellissimo edificio Art Nouveau - Ausekļa Street 6A, Riga. Layout: ampio ingresso con guardaroba, camera da letto, due soggiorni, uno con un camino, due camere da letto per bambini, camera da letto principale con il suo bagno, cucina con sala da pranzo, ripostiglio, due bagni....
SIA "Estater Nekustamie Ipašumi"
1/18
95 000 €
Casa a Sutomore, Montenegro
60 m2
Permesso di soggiorno con l’acquisto
La casa a Sutomore. La casa ha una zona di 60 m2 con una terrazza. La trama è di 210m2. Il mare è a 1000 metri di distanza, vicino al negozio HDL. Il prezzo è di 95.000 euro
Galeo
1/11
119 000 €
Appartamento a Torrevieja, Spagna
68 m2 3 2 1
Visita online Transazione a distanza Mutuo
Rif. KHE2705 torrevieja, Area 68M2 terrazza di 5m2 Ci sono 3 camere 2 camere da letto bagni 1 Floor 1 2003 Centro distrettuale Il mare è a 900 m di distanza Imposta annuale -€ Comunale -33 €
Planeta Spain
1/12
229 500 €
Appartamento a Riga, Lettonia
90 m2 4 3 2
Appartamento a 4 camere disponibile per la prenotazione in Siliena Parklife Apartments, Turaidas Street 7, Pinkos! Offriamo un nuovo appartamento, efficiente dal punto di vista energetico e ben ponderato nel moderno progetto di appartamenti Sallena Parklife-una scelta ideale per una famiglia o coppie che apprezzano la qualità, il comfort e un...
SIA "Estater Nekustamie Ipašumi"
1/12
470 000 €
Appartamento a Riga, Lettonia
108 m2 5 4
Un appartamento di 5 camere in vendita in New Project Blue Marine - The Development Building of the Klīversalas Quarter. Creare un unico spazio abitativo nel quartiere di Klīversalas, il carattere storico, la natura unica, l'architettura moderna e il paesaggio ponderato del territorio saranno combinati armoniosamente. La posizione del progetto...
SIA "Estater Nekustamie Ipašumi"
1/7
930 000 €
Appartamento a Nizza, Francia
70 m2 3 2 2
Permesso di soggiorno con l’acquisto Visita online Transazione a distanza Pagamento in criptovalute Immobile in affitto
Résidence Villa Candide residenza di lusso nel cuore della piazza d'oro di Nice. Include 29 appartamenti di vari layout - dagli studi agli appartamenti di quattro camere. L'architettura riflette lo stile tradizionale di Nice. standard di alta qualità e servizi esclusivi sottolineano il prestigio di questo luogo. parcheggio privato.
Immobilier en France
1/6
140 000 €
Appartamento a Herceg-Novi, Montenegro
34 m2 1 1
Visita online Transazione a distanza
Appartamento arredato con una camera da letto sulla riva del mare igalo. Area di appartamento 34 m2, layout di camere: ingresso, bagno, camera da letto, soggiorno, due terrazze. Posizione molto attraente, prezzo: 140.000 euro
Rivijera Nekretnine
1/8
1 130 000 €
Appartamento a Jurmala, Lettonia
151 m2 4 3
Offriamo appartamenti esclusivi per l'acquisto nel prestigioso progetto Villa Milia - Comfort e lusso nel cuore di Jūrmala! Questo appartamento sofisticato si trova al 1 ° piano e presenta tre spaziose camere da letto, offrendo comfort e privacy per tutta la famiglia. La zona giorno è di 150,6 M & Sup2;, offre un vero senso di libertà e...
SIA "Estater Nekustamie Ipašumi"
1/8
310 000 €
Appartamento a Jurmala, Lettonia
132 m2 4 3 3
Offriamo di acquistare un appartamento sofisticato e spazioso di quattro stanze nel prestigioso progetto & ldquo; Jurmala Park House & rdquo;, situato in uno dei luoghi più ricercati e più verdi-Dzintari, Mežaparka Prospekt. Questa è un'opportunità per vivere nel cuore di Jurmala, dove la vicinanza del mare, la pineta e il comfort moderno si...
SIA "Estater Nekustamie Ipašumi"
1/16
129 900 €
Appartamento a Torrevieja, Spagna
70 m2 3 2 1
Visita online Transazione a distanza Mutuo
Presentiamo questa piccola gemma nell'area di Parque de las naciones! Questo fantastico appartamento semi-rinnovato è molto spazioso, luminoso, in perfette condizioni, appena dipinto e con finiture moderne. Si trova nell'area di Parque de las Naciones, a 1000 metri dalla spiaggia e 800 metri da Paseo de Vistalegre. Pronto a trasferirsi, ha...
Planeta Spain
1/18
820 000 €
Proprietà commerciale ad Atene, Grecia
340 m2
Permesso di soggiorno con l’acquisto
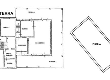
Grecia. In vendita è un edificio di 340 m2 ad Atene nel centro della città. 820 000 € Codice oggetto 25447 Area 340 m2 Posizione Attica (Grecia) | Atene - Centro - Centro Maggiori dettagli Anno di costruzione: 1930 Anno di ristrutturazione: 2017 Riscaldamento Distanza dall'aeroporto: 1 km a quattro piani 340 mq Dettagli: piano terra - magazzini...
Europe Gmbh
Non hai trovato l’immobile giusto?

Riceverà una selezione personale di immobili secondo le Sue esigenze.

Lasciare richiesta
1/11
83 000 €
Appartamenti a Alanya, Turchia
38 m2 1 1 1
Pagamento in criptovalute Mutuo
Informazioni sull'appartamento: i 38 mq. Studio si trova al terzo piano ed è composto da un soggiorno con una cucina americana, un bagno e un balcone. L'appartamento è dotato di mobili e elettrodomestici. Informazioni sul complesso: il complesso residenziale è stato costruito nel 2022 ed è costituito da un blocco a 5 piani con un'area chiusa e...
GLOBAL ESTATE
1/3
1 600 000 €
Casa di reddito ad Atene, Grecia
843 m2
Permesso di soggiorno con l’acquisto
Grecia. In vendita - 843 M2 Building ad Atene nel centro della città 1.600.000 € Codice oggetto 41086 Area 843 M2 Posizione Athens Center (Attica) Maggiori dettagli Anno di costruzione: 2010 Distanza dal mare: 5400 m Distanza dall'aeroporto: 38 km Elevator per la vendita a 6 swepy in Athens, nel centro della città nella zona di Keramikos....
Europe Gmbh
1/16
164 900 €
Appartamenti a Pilar de la Horadada, Spagna
152 m2
Immobile in affitto
Spagna. Appartamento a Pilar de la Horadada. N. 6763 Pilar de la Horadada, Costa Blanca € 164.900 camere da letto 2 bagni 2 certificato BNNCK2887 Appartamento a efficienza energetica all'ultimo piano a Pilar de la Horadada. Un soggiorno, una cucina aperta, 3 spaziose camere da letto con armadi aderenti, 2 bagni, una terrazza di 11 m2, un...
Europe Gmbh
1/16
990 000 €
Appartamenti a Madrid, Spagna
139 m2
Immobile in affitto
Spagna. Appartamento 139m2 a Madrid. No50160 990 000 € Area 139 m2 camere da letto 3 bagni 2 Ref MA18 Meraviglioso appartamento di 139 m2, situato al 4 ° piano di un edificio dalla metà del secolo scorso, di fronte a sud -ovest. Questo è un appartamento spazioso e luminoso, completamente rinnovato, arredato e decorato con design, qualità e buon...
Europe Gmbh
1/18
950 000 €
Appartamenti a Madrid, Spagna
127 m2
Immobile in affitto
Spagna. Appartamento di 127m2 a Madrid. NO50161 950.000 € Area 127 m2 camere da letto 3 bagni 3 ref MA19 Questa casa si trova al secondo piano con un ascensore. L'appartamento con soffitti alti è composto da 3 camere da letto con 3 bagni e 3 bagni completi, 2 dei quali con bagni privati, uno dei quali con vasca e una doccia, un soggiorno, una...
Europe Gmbh
1/17
1 049 000 €
Appartamenti a Madrid, Spagna
128 m2
Immobile in affitto
Spagna. Appartamento 128m2 a Madrid. N. 50162 1.049.000 € area 128 m2 camere da letto 3 bagni 4 ref ma20 appartamento di 128 m2 (utile 93 m2) dopo il complemo rinnovamento e decorato con architettura arctempus, al secondo piano nel cuore di Madrid, con una fantastica illuminazione naturale. Il soggiorno, la sala da pranzo e la cucina sono dotati...
Europe Gmbh
1/15
2 200 000 €
Appartamenti a Madrid, Spagna
177 m2
Spagna. Appartamento a Madrid. #50284 Madrid € 2.200.000 area 177 m2 camere da letto 3 bagni 4 ref ma23 Questo appartamento, completamente progettato dal famoso Pilar Garcia-Ferrer (@Pilsferrer), offre un senso unico di raffinatezza e stile. Entrando, la lobby impressionante e funzionale ci mostra il layout attentamente ponderato di ogni angolo...
Europe Gmbh
1/8
582 000 €
Appartamenti a Madrid, Spagna
85 m2
Spagna. Nuovo appartamento a Madrid. € 582.000 area 85 m2 camere da letto 2 bagni 2 ref MA24 Certificato di energia Calcola il complesso residenziale ipotecario situato a Valdebebas, una posizione privilegiata e costantemente in via di sviluppo che è cresciuta significativamente negli ultimi anni a causa di eccellenti connessioni con il centro...
Europe Gmbh
1/15
75 300 €
Studio a Sveti Vlas, Bulgaria
43 m2 1 1
Visita online Transazione a distanza Pagamento in criptovalute
Studio nel Sea Fort Club Complex, Sveti Vlas È costituito da un corridoio, una stanza, un bagno e una terrazza. È possibile acquistare un appartamento in rate. Camere: 1 Bagno: 1 Terrazza: 1 Area: 43.14 sq.m Piano: 2/6 Al mare: 200 m Elevatore: Sì Atto 16 Commissione di supporto: 14,50 euro /sq.m all'anno "Fort Noks Grand...
Happy Home
1/13
84 700 €
Appartamento a Burgas, Bulgaria
100 m2 3 2 2
Visita online Transazione a distanza Pagamento in criptovalute
Appartamento con 2 camere da letto in vendita in una zona in via di sviluppo di Burgas, Meden Rudnik. La possibilità di rate per 1 anno È costituito da un corridoio, un soggiorno, due camere da letto, due bagni e due terrazze. Camere: 3 Bagno: 2 Terrazza: 2 Area: 100 mq PIANO: 7/13 Al mare: 3 km Elevatore: Sì Atto 15...
Happy Home
1/14
1 750 000 €
Appartamenti a Madrid, Spagna
197 m2
Spagna. Appartamento di 197m2 a Madrid. NO50481 Madrid 1.750.000 € Area 197 M2 camere da letto 3 bagni 4 Ref MA27 Appartamento esclusivo, completamente rinnovato con lussuose finiture, situate vicino alla prestigiosa Avenue Concha Espina. L'appartamento ha un doppio orientamento verso est e sud, il che garantisce un'eccellente illuminazione...
Europe Gmbh
1/11
1 530 000 €
Appartamenti a Madrid, Spagna
149 m2
Immobile in affitto
Spagna. Penthouse di 149m2 a Madrid. No50483 1.530.000 € Area 149 M2 camere da letto 3 bagni 4 ref MA28 Penthouse esclusiva di 149 m2, completamente rinnovato con lussuose finiture, situate nell'area El Viso, vicino a Chambery e Salamanca. L'attico offre una spaziosa camera da pranzo con cucina. Un concetto aperto e accesso a una terrazza...
Europe Gmbh
1/18
970 000 €
Casa a Marupe, Lettonia
614 m2 7 4 3
villa squisita in mārupo con carattere architettonico e spaziosi terreni Questa elegante residenza in una delle aree più prestigiose della regione di Marupsky offre la perfetta combinazione di eleganza, tecnologia e comfort. L'architettura della casa è pensata ai minimi dettagli per soddisfare i requisiti delle famiglie moderne che...
SIA "Estater Nekustamie Ipašumi"
1/18
417 000 €
Casa nella municipalità di Marupe, Lettonia
290 m2 5 3 2
House ad alta efficienza energetica nel villaggio d'élite dzilnuciems “Celmi”, Marupes Nov., È un luogo ideale per vivere vicino alla natura e vicino a Riga e Jurmala dzilnuciems, mārupes Novads Area: 290.3 m2 - Layout: 5 soggiorni 3 camere da letto ciascuna con spogliatoio grande soggiorno cucina con elettrodomestici moderni...
SIA "Estater Nekustamie Ipašumi"
1/10
27 000 €
Appartamento a Santa Maria del Cedro, Italia
39 m2 2 1 1
L'appartamento si trova nella città costiera di Santa Maria del Cedro, nel sud dell'Italia, situata nella pittoresca regione della Calabria, sulle rive del Mar Tyrrenian, un luogo in cui il tempo rallenta e ogni giorno è pieno del sole, gli aromi di erbe mediterranee e il suono delle onde. L'appartamento ha una zona di 39 mq. È costituito da un...
TECNOCASA Franchising Network Affiliato: Studio Scalea sas di De Leo Monica & C
1/9
375 000 €
Appartamenti a Benidorm, Spagna
111 m2 2 2
Complesso residenziale esclusivo nei sobborghi di Benidorm! appartamenti, attici e amp; Ville ️ A soli 3 km dalle migliori spiagge sabbiose della costa della Costa Blanca settentrionale. La residenza comprende solo 66 appartamenti moderni e 14 ville di lusso. Completamento della costruzione: giugno 2026. Unità 1 Apartments € 375.000. 2...
Atalanta

Cerca gli immobili nell'app

Inquadra il QR code con la fotocamera dello smartphone per scaricare l'app
Raccolte di immobili