
103 500 €
103 500 €
Location:
This project is located on the eastern coast of Kyrenia in the Bakhcheli district, just a 5-minute walk from the sea. It boasts magnificent sea views as well as stunning mountain scenery. Also, the project is only a 10-minute drive from a professional golf course ranked in the PGA ranking, and only a 25-minute drive from Kyrenia with its excellent restaurants, shops, sports clubs and cultural attractions, which makes it attractive for those who are looking for a balanced lifestyle.
Features:
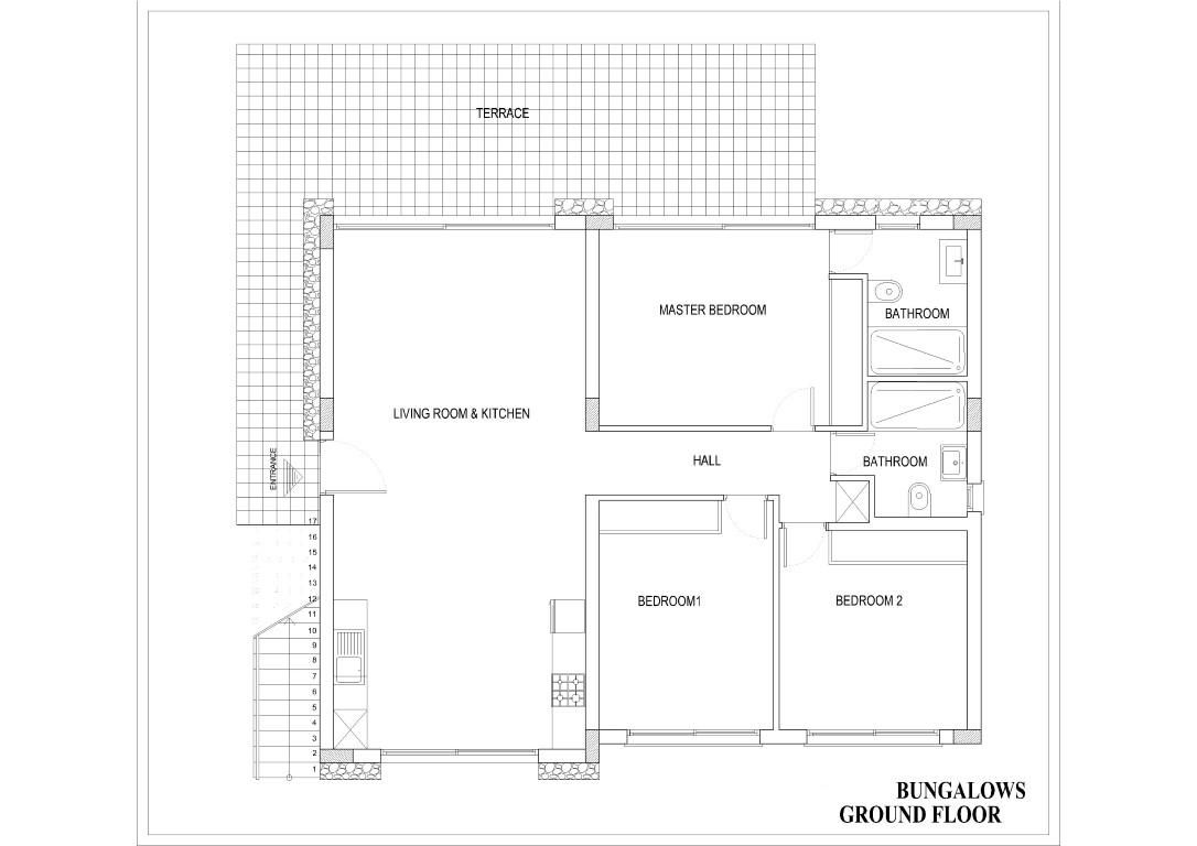
The project includes 175 residential properties, including spacious studios, incredible one- or two-bedroom apartments and impressive stone-walled bungalows that blend harmoniously with the surrounding environment. With three different residential designs to choose from, everyone will be able to find a suitable option. The project has a swimming pool, parking and a green garden, creating a pleasant atmosphere and providing comfortable accommodation for residents.
Advantages:
This project provides an exceptional variety of residential facilities and an enviable location that satisfies a variety of interests and lifestyle.