
550 000 €
550 000 €
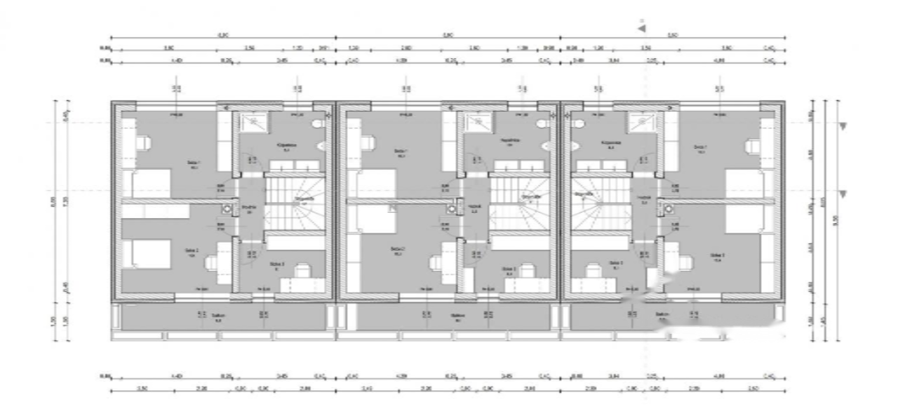
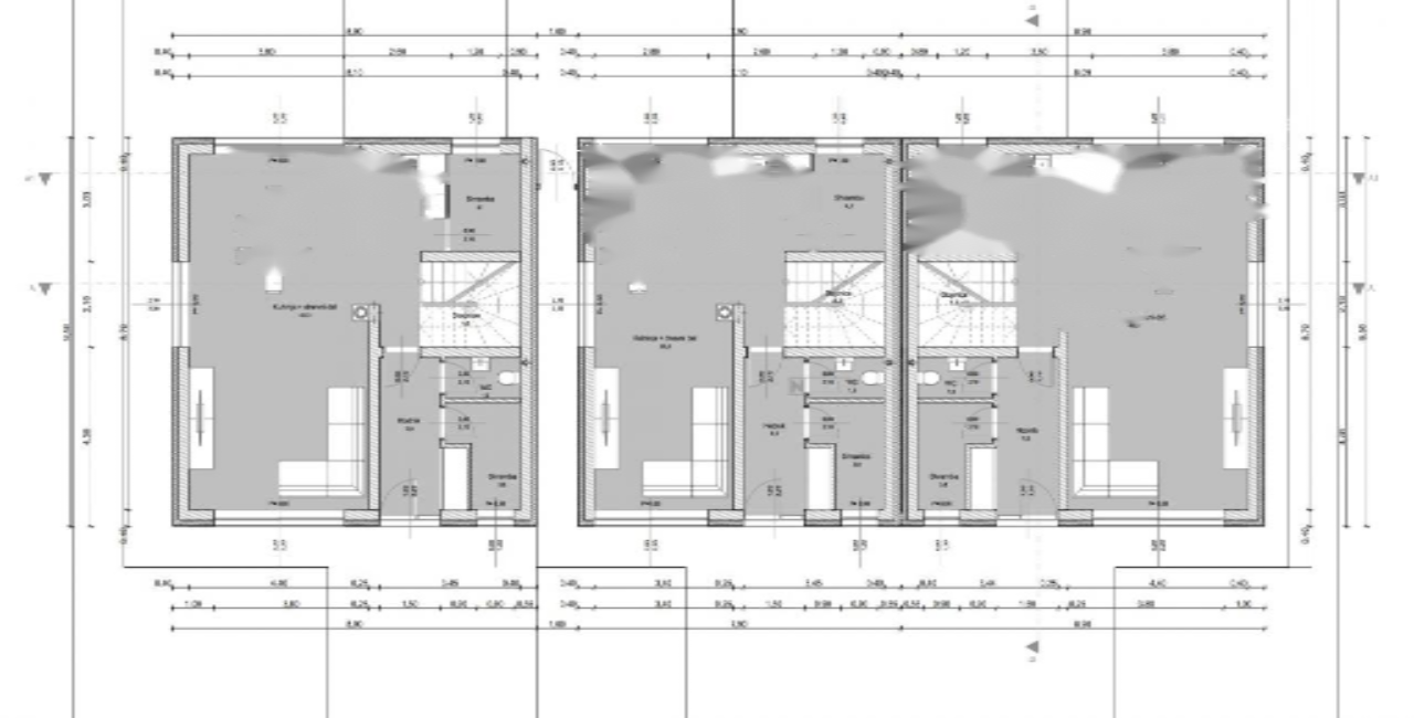
Un diagramma di terra con un'area di 804 m2 è offerto in vendita con un permesso di costruzione finale per la costruzione di un complesso residenziale di alta classe nell'area di Stojice. Questa trama offre un'opportunità unica per combinare la comodità urbana con l'armonia naturale e costruire alloggi moderni nella prestigiosa area di Bejigrad.
Il concetto architettonico del progetto includerà soluzioni moderne ed efficienti dal punto di vista energetico, garantendo la sostenibilità e i risparmi sui costi di riscaldamento e raffreddamento, oltre a ridurre l'impronta di carbonio. Il design assume interni luminosi e spaziosi adattati alle esigenze delle famiglie moderne. Inoltre, il layout sopra standard garantisce il più alto livello di comfort, tra cui una zona notte separata all'ultimo piano per una maggiore privacy, nonché bagni moderni e materiali di alta qualità.
I permessi sono completamente preparati, il che facilita l'inizio dei lavori di costruzione. La trama si trova in un'area ben sviluppata con accesso a tutte le infrastrutture urbane necessarie. Ci sono scuole e asili nelle immediate vicinanze, il che è un grande vantaggio per le famiglie. La vicinanza dell'autostrada e del sistema di trasporto LPP offre eccellenti opportunità di trasporto.
A causa della combinazione di bellezza naturale e accessibilità urbana, la trama è ideale per costruire una casa di famiglia, fornendo condizioni per una vita pacifica in un ambiente verde con facile accesso ai servizi urbani.
Valutazione di attrattiva degli investimenti: 9 su 10 . Questo è un indicatore elevato a causa delle caratteristiche uniche del sito e della possibilità di un aumento del suo valore in futuro.
Costo: 550.000 EUR