
699 000 €
699 000 €
| Prezzo di vendita | 699 000 € |
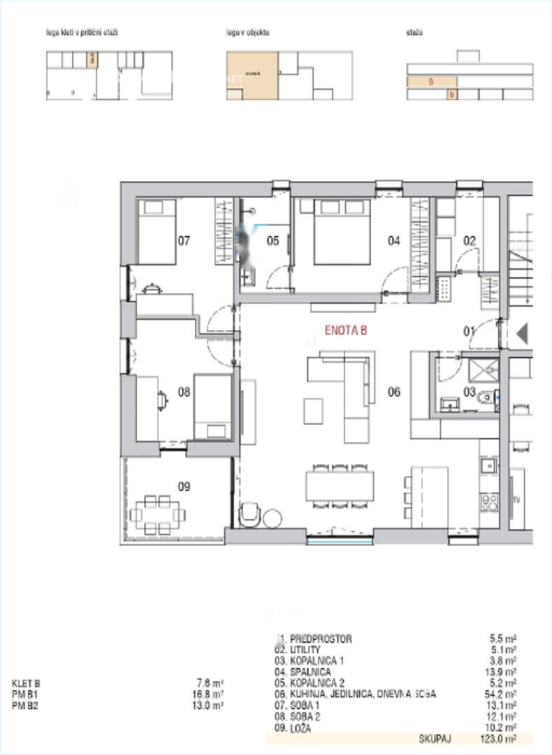
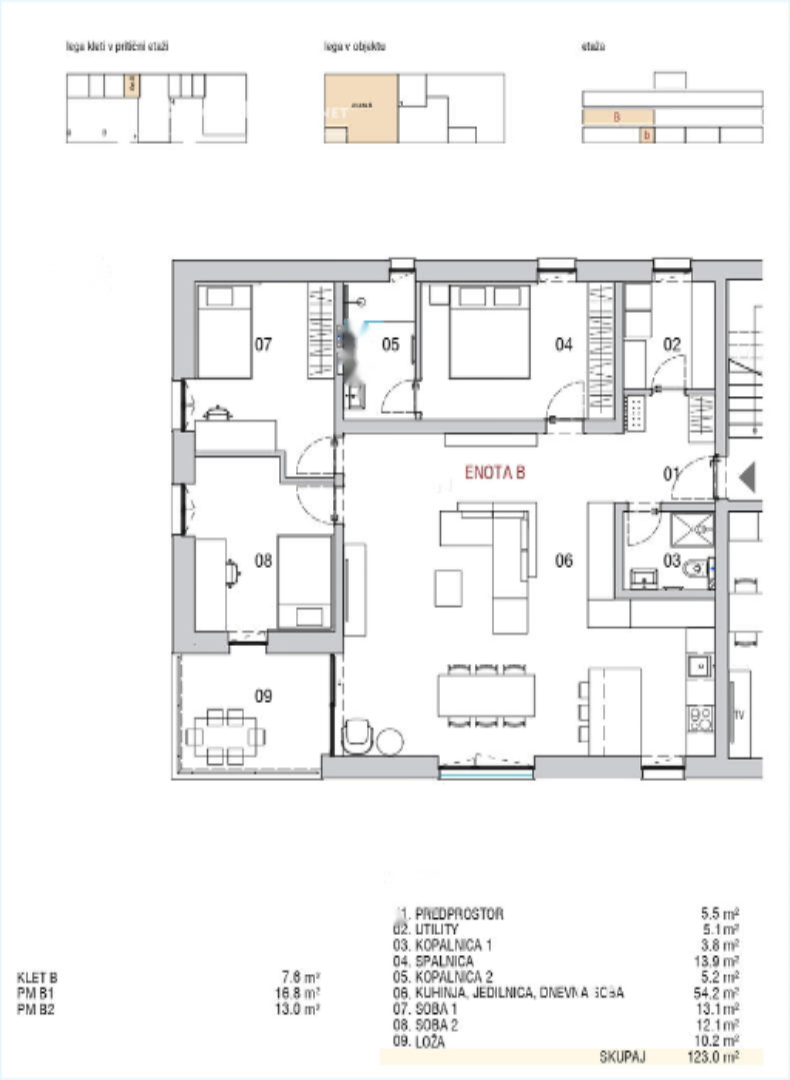
| Prezzo al metro quadrato | 5 335.88 € |
| Superficie | 131 m² |
| Piano | 1 |
| Numero di locali | 4 |
| Stadio di costruzione | Immobile in costruzione |
| Indirizzo | Slovenia, Lubiana |
| Tipo | Quadrilocale e plurilocale |
Offriamo in vendita un ampio appartamento con quattro camere da letto nel nuovo complesso residenziale Vila Block Slape 2, situato nel prestigioso distretto di Polje, Novoe Polje. Il progetto include solo sette appartamenti, che garantiscono la privacy e le comode condizioni di vita. L'architettura moderna e i materiali di alta qualità rendono questo nuovo edificio efficiente dal punto di vista energetico, che riduce i costi operativi. L'appartamento sarà disponibile per l'occupazione nell'estate del 2026.
La posizione della struttura è piacevole a causa della sua vicinanza alla natura, a soli due minuti dall'autostrada e vicino a numerose rotte ricreative (Golovets, Orel, ecc.). L'infrastruttura favorevole include un comodo accesso ai trasporti pubblici (LPP), nonché la vicinanza all'asilo, alla scuola, alle banche, ai negozi, all'ufficio postale e alle istituzioni mediche.
Prezzo: 699.000 €