
1 270 000 €
1 270 000 €
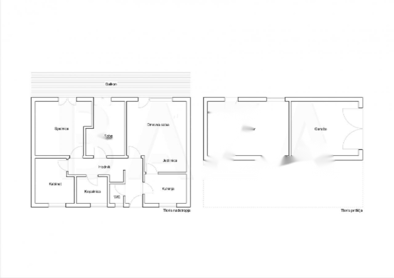
Proponiamo in vendita una casa unica ad un piano sul magnifico lato sud nel centro di Portorose, a soli 200 metri dalla costa. Costruita nel 1972 e ristrutturata nel 2009, questa casa è una grande opportunità di investimento e una vita confortevole. La superficie totale della casa è di 147,9 m2 e il terreno è di 627 m2.
La casa ha una disposizione unica che offre spazio e comfort. Al piano terra si trovano un garage, un laboratorio, un soggiorno, un giardino d'inverno e due terrazzi coperti. Al secondo piano, accessibile tramite terrazzo esterno, si trovano un corridoio, un wc, un bagno, uno studio, due camere da letto, una cucina e un soggiorno. Entrambe le camere da letto e il soggiorno hanno accesso ad un ampio terrazzo con spettacolare vista sul mare.
Il terreno antistante la casa comprende il parcheggio per due auto, un prato e un orto. La casa è dotata di impianto di riscaldamento centralizzato a gasolio e condizionatori per un soggiorno confortevole in ogni periodo dell'anno. Le aree ricreative nelle vicinanze offrono opportunità di svago attivo e tutte le strutture necessarie si trovano nelle vicinanze: negozi, una scuola, un asilo, una farmacia, un ufficio postale e una fermata dell'autobus.
Prezzo: 1.270.000 euro