
494 000 €
494 000 €
Seaview Villas with Private Gardens in İzmir
Situato sul Mar Egeo, Güzelbahçe è uno dei quartieri più esclusivi di Smirne, in Turchia. Oltre ad offrire un ambiente tranquillo, offre anche un facile accesso al centro di Smirne e alle zone turistiche come Çeşme e Urla. I suoi progetti orizzontali bassi aggiungono un ambiente affascinante. Sede di una popolazione d'élite, la zona si distingue per l'aria pulita, famosi ristoranti di pesce e strutture educative di alto livello.
Le ville in vendita a Smirne si trovano a soli 20 metri dal mare. Distano inoltre 250 m dal mercato, 300 m dai ristoranti sul mare, 1,8 km dal porto turistico, 3,5 km da una spiaggia con bandiera blu e 30 km dall'aeroporto internazionale Adnan Menderes.
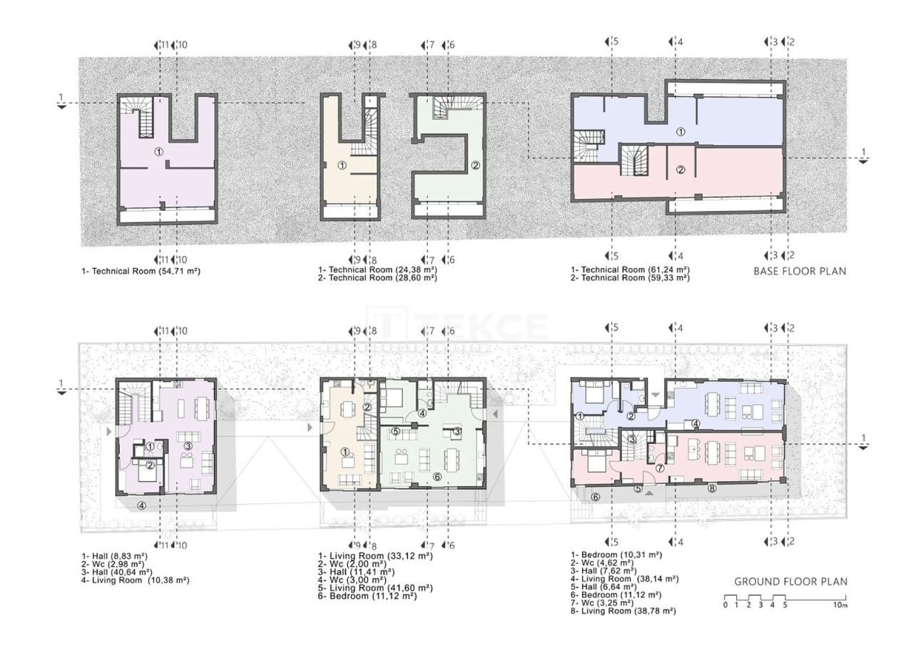
Situato su 960 mq di terreno, il progetto prevede 4 case a schiera e 1 villa indipendente. Ogni unità è dotata di parcheggio, giardino privato e design raffinato. Il progetto è adatto per la residenza tutto l'anno.
Le ville dispongono di cucine a pianta aperta, ampi soggiorni, camere da letto e bagni. Sono tutte dotate di sistemi di casa intelligente, mobili da bagno e da cucina laccati, infissi di marca, elettrodomestici da cucina da incasso, cabine doccia e finestre termoisolanti.