
5 100 000 €
5 100 000 €
| Verkaufspreis | 5 100 000 € |
| Preis pro qm | 55 135.14 € |
| Fläche | 92.5 m² |
| Gesamtzahl der Zimmer | 2 |
| Anzahl der Schlafzimmer | 1 |
| Anzahl der Badezimmer | 1 |
| Adresse | Monaco, Monte Carlo |
| Lage | am Meer |
| Typ | Zwei-Zimmer-Wohnung |
| Zusätzliche Transaktionskosten | |
|---|---|
| Nicht im Preis inbegriffen verkaufen |
| Kreditbedingungen | |
|---|---|
| Kredit möglich | |
| Der Zinssatz für das Darlehen | ab 0.85 bis 1.85 % |
Apartment 93 m2 with sea view in Millefiori
Diese schöne Wohnung befindet sich einige Minuten vom Casino und seinen Gärten in einer modernen Residenz mit 24-Stunden-Sicherheit.
Die doppelte Ausrichtung der Wohnung ermöglicht ein optimales Sonnenlicht und bietet einen herrlichen Panoramablick auf das Meer, das Fürstentum und die umliegenden Berge.
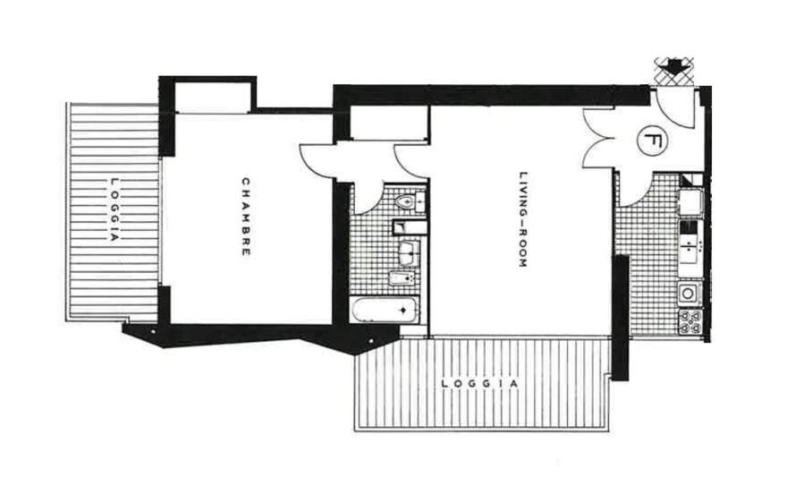
Die Wohnung verfügt über eine Eingangshalle, eine ausgestattete Küche, ein geräumiges Wohnzimmer mit Zugang zu einer Loggia mit Blick auf das Casino und das Meer, einen Flur mit einem Schrank, der zum Schlafbereich mit einem wunderschönen Schlafzimmer mit einer eingebauten Garderobe mit Blick auf eine zweite Loggia und ein voll ausgestattetes Badezimmer führt.
Möglichkeit, einen Tiefpunktplatz zu kaufen: 400.000 Euro.
Weitere Informationen
Gesamtfläche: 92,50 m2
Zimmer: 2
Schlafzimmer: 1
Badezimmer: 1
Aussicht: Panorama -Meerblick
Gebäude: Millefiori
Bereich: Monte-Carlo