Pas cher à l'étranger Appartements à vendre

1/19
699 000 €
Appartement à Estepona, Espagne
105 m2 4 3 2
Visionnage en Ligne Transaction à Distance
Appartements élégants avec des équipements exclusifs à Estepona Les appartements offrent des espaces de vie brillants et spacieux avec des dispositions de plan ouverts. Les fenêtres du sol au plafond relient le salon à la terrasse, tandis qu'une palette de couleurs naturelle et des détails élégants créent une atmosphère calme et intemporelle....
Spain Homes
1/19
699 000 €
Appartement à Tivat, Monténégro
91 m2 3 2 2
Propriété à louer
Appartement de deux chambres dans l'hôtel Siro 5 étoiles - Le premier hôtel Siro en Europe s'est concentré sur le fitness et le bien-être. Hotels Siro, qui fait partie du prestigieux groupe international de Kerzner, offrent aux clients une approche holistique de la fitness et de la récupération, mettant l'accent sur cinq piliers clés: la...
VALUE.ONE
1/19
699 000 €
Appartement sur Tenerife, Espagne
140 m2 2 2
Résidence
Une occasion unique de devenir propriétaire d'un complexe nouvellement construit d'environ 30 appartements, situé au cœur de Costa Adeje, à 5 minutes en voiture de l'une des meilleures plages de Playa del Duque et dans le prestigieux quartier de Fanabe Miraverde. La zone totale de l'appartement est de 140 m2, qui se compose d'un salon spacieux...
VYM Canarias
1/14
699 000 €
Appartement en Hongrie
146 m2 4 3 3
à vendre est un luxueux appartement de 146 m² au 1er étage dans l'un des plus beaux bâtiments du front de mer de Belgrade, au cœur du 5ème district de Budapest. Cette maison unique peut être appelée un musée en toute sécurité, avec son architecture historique et ses intérieurs modernes. L'appartement a été entièrement rénové et repensé aux...
Mercury Group
1/18
699 000 €
Penthouse par le Lac de Garde, Italie
92 m2 3 2 2
Visionnage en Ligne Transaction à Distance
Une opportunité extraordinaire vous attend dans la célèbre péninsule de Sirmione: ce penthouse unique est un joyau de l'immobilier. Profitez d'une vue panoramique incomparable sur le lac Garda sous tous les angles de cet appartement spectaculaire, grâce à sa grande terrasse qui embrasse toute la propriété. L'emplacement central de cette...
GH Estate
1/12
699 000 €
Appartement à Limassol, Chypre
113 m2 2 2
Résidence
Le complexe résidentiel fermé moderne se compose d'appartements et de penthouses spacieux. Le projet comprend 7 appartements avec deux et trois chambres et 2 penthouses avec trois et quatre chambres. Le projet est situé dans la prestigieuse zone touristique de la ville - Potamos Germasogéia, à distance de marche des plages de sable....
BLUE SKY HOUSES
1/7
699 000 €
Penthouse à Larnaca, Chypre
108 m2 2 4
Résidence
Le projet comprendra vingt appartements spacieux. Il y aura six appartements d'une chambre et un appartement de deux chambres aux premier et deuxième étages. Du troisième au sixième étage, il y aura trois appartements avec deux chambres et deux salles de bains. Les trois appartements au sixième étage disposeront de penthouses privées et...
BLUE SKY HOUSES
1/17
699 000 €
Appartement par le Lac de Garde, Italie
68 m2 2 1 1
Visionnage en Ligne Transaction à Distance
Peschiera del Garda dans un emplacement très central dans une Résidence avec piscine, nous vous proposons un appartement de deux pièces au premier étage, composé de salon avec coin cuisine, chambre double, salle de bains et terrasse privée avec vue sur le lac. Deux garages individuels complètent la propriété. Peschiera del Garda est l'une des...
GH Estate
1/18
699 000 €
Appartement à San Remo, Italie
104 m2 3 2 2
Proposition immobilière réf. SAN 1103 Ville: San Remo Quartier de la ville: Foce alta Rue: Strada San Lorenzo M²: 104 m² + espaces extérieurs Étage: 2ème + sous le toit Année de construction: 1995 Ascenseur: non Chauffage: chauffage autonome Dépenses annuelles: environ 1500EUR Type : grand appartement sur deux niveaux Vue: vue panoramique mer...
Immobiliare Europa Sanremo Srl
1/2
699 000 €
Appartement à Vienne, Autriche
111 m2
Bel appartement à vendre à Vienne Emplacement: La maison a été construite en 1884 et est située dans l'un des quartiers les plus attractifs culturellement de Vienne. Josefstadt se distingue par le style architectural viennois classique. Les autres avantages de la région incluent d'excellentes liaisons de transport, la présence d'un grand nombre...
WESTINVEST
1/4
699 000 €
Appartement à Berlin, Allemagne
119 m2 4 3 2
Appartement dans un nouveau projet résidentiel, qui est en construction dans le quartier des affaires de Berlin, à 10 minutes en voiture du centre-ville, à la frontière des quartiers Mitte et Friedrichshain. Deux tours s'élèveront au-dessus du remblai de la Spree, offrant aux résidents une vue magnifique sur la rivière et la ville. L'ensemble...
NF Group
1/19
699 140 €
Appartement à Dubaï, EAU
202 m2 4 4 5
Metropolitan Premium Properties
1/2
699 282 €
Appartement à Phuket, Thaïlande
131 m2 3 3
Laguna Seashore est une copropriété boutique située sur le littoral de Bang Tao Beach, composée de 49 appartements de premium spacieux. Les acheteurs exigeants peuvent choisir parmi une variété de plans d'étage pratiques, y compris des résidences confortables de 1 chambre mesurant 60 m², des résidences spacieuses de 2 chambres mesurant 99 m²...
Mercury Group
1/19
699 500 €
Penthouse à Paphos, Chypre
148 m2 3 2
Résidence
Le complexe résidentiel de luxe du design moderne se compose d'appartements de luxe à une et deux chambres sur les 1er et 2e étages, ainsi qu'un spacieux penthouse de trois chambres occupant tout le 3e étage. Tous les niveaux sont desservis par un ascenseur. Il y a une piscine commune avec vestiaire, un parking privé et des salles de stockage...
BLUE SKY HOUSES
Commander une sélection de biens immobiliers

Vous recevrez une sélection personnalisée de biens de la part d’agences et de promoteurs de confiance – rapide, pratique, gratuit

Laisser une demande
1/14
699 900 €
Appartement à Budva, Monténégro
177 m2 4
Résidence
Le code objet est 1.30.13.11687 Appartement de luxe à vendre en première ligne avec vue mer à mer, dans un immeuble neuf, sur le boulevard principal, à côté des clubs Slavia et Admiral et en face de l'hôtel Slovenska Plaza. L'appartement est situé au 5ème étage, a une superficie de 177 m2 et se compose de 4 chambres, 3 salles de bains, un WC...
DOO TradeGoria
1/18
700 000 €
Appartement à Opatija, Croatie
108 m2 3 2 2
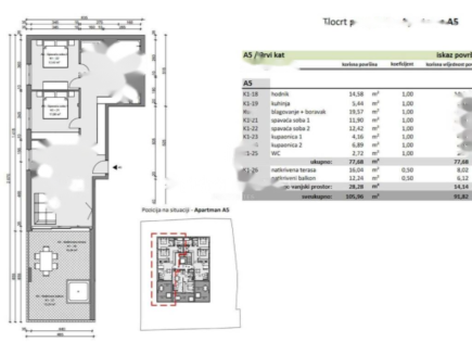
We offer for sale an exclusive apartment in Opatija, located in a luxury new building. The 108 m2 apartment is located on the ground floor and has an elegant design and a comfortable layout. The apartment includes two bedrooms, a spacious living room with kitchen and dining area, two bathrooms and a separate toilet. The living area is 91.82...
MIRAG INVEST DOO
1/6
700 000 €
Appartement à Gorizia, Italie
200 m2 5 3 2
Appartement de luxe à vendre en centre ville, offrant une opportunité unique de vivre dans un environnement raffiné au coeur de la vie urbaine. L'espace d'environ 200 mètres carrés offre lumière naturelle et confort dans tous les coins. Caractéristiques principales: Un salon spacieux, idéal pour des réunions chaleureuses. La cuisine est...
MIRAG INVEST DOO
1/17
700 000 €
Appartement à Bourgas, Bulgarie
208 m2 4 3
ID 34077418 Prix : 700 000 euros Localité : Bourgas Chambres : 4 Superficie totale : 207,98 Étage : 17 Frais de support : non Étape de construction : Acte 16 Nous présentons à votre attention un magnifique appartement de quatre chambres avec Acte 16 dans le complexe résidentiel d'élite CHANTRER Residence, situé dans le...
OAZIS REALTY
1/14
700 000 €
Appartement à Ljubljana, Slovénie
86 m2 3
Nous présentons à votre attention un prestigieux appartement de 86 m2 dans le complexe Spectrum nouvellement construit, situé dans le quartier Shishka, où l'urbanisme se combine harmonieusement avec la nature. L'appartement dispose de deux places de parking et d'un débarras. L'établissement 2023 offre un haut niveau de confort grâce à ses...
MIRAG INVEST DOO
1/18
700 000 €
Appartement à Antalya, Turquie
165 m2 4 2 2
Crédit
Cet appartement a été magnifiquement rénové et comprend deux chambres, un bureau, un salon, une cuisine, deux salles de bains, une terrasse vitrée et un balcon. A proximité se trouvent de nombreux commerces, un marché, des salons de beauté, des clubs enfants et des salles de sport. La mer est accessible à pied. Le transport est excellent.
Eval
1/11
700 000 €
Appartement à Ljubljana, Slovénie
136 m2 4 3 1
Nous présentons à votre attention un appartement moderne de quatre pièces avec une superficie de 135,7 m2 au cœur du district de Bezigrad à Ljubljana. Le complexe résidentiel de résidence Bezigrad Topnisnishka combine les réalisations de l'architecture moderne et des normes élevées d'efficacité énergétique. L'appartement est situé au troisième...
MIRAG INVEST DOO
1/17
700 000 €
Appartement à Budva, Monténégro
233 m2 3 2
Résidence
Nous vous offrons 2 appartements uniques sur les étages supérieurs dans un complexe résidentiel situé entre la ville de Budva et la station de Becici dans l'une des zones les plus prestigieuses de la Riviera de Budva. La terrasse de chacun de ces appartements offre une vue magique sur la mer, Becici Beach et Sveti Stefan. Il est possible de...
DOO "Monteonline"
1/19
700 000 €
Appartement à Limassol, Chypre
155 m2 3 3 3
Résidence
Découvrez une retraite paisible parmi les paysages pittoresques de Souni, près de Limassol, dans ce complexe résidentiel bien conçu. Inspiré par l'architecture de style californien, il rassemble des villas élégantes, des maisons de ville élégantes et des immeubles d'appartements modernes, chacun harmonieusement intégré dans le cadre naturel. Le...
Cyprus Sotheby's International Realty
1/19
700 000 €
Appartement à Bodrum, Turquie
135 m2 4 3 2
Résidence Visionnage en Ligne Transaction à Distance
Appartements Nature et Vue Mer à Bodrum Muğla Les appartements avec vue sur la mer et la nature se trouvent à Gümüşlük, où se trouvent les ruines de la ville antique de Myndos. Gümüşlük est une région célèbre de la région avec des monuments historiques, un style de vie charmant et des événements nationaux et internationaux. Les appartements en...
TEKCE
1/14
700 000 €
Penthouse à Alanya, Turquie
236 m2 5 4 4
Résidence Visionnage en Ligne Transaction à Distance
Chic Design Apartments dans un complexe à 400 m de la côte d'Alanya Antalya Alanya est situé du côté est d'Antalya et est connu pour son long littoral, ses belles plages, ses installations de divertissement et sa riche beauté historique et naturelle, attirant des milliers de touristes chaque année. Le projet est situé dans la région de Kestel,...
TEKCE
1/19
700 000 €
Penthouse à Alanya, Turquie
275 m2 5 4 3
Résidence Visionnage en Ligne Transaction à Distance
Chic Design Sea View Apartment dans un complexe d'hôtel-concept à Alanya L'appartement est situé dans le quartier Mahmutlar, l'une des zones les plus développées d'Alanya depuis de nombreuses années. Mahmutlar se démarque avec son littoral de 5 km, ses plages de drapeau bleu et sa proximité avec les banques, les restaurants, les bars, les...
TEKCE
1/19
700 000 €
Appartement aux Émirats Arabes Unis
110 m2 3 2 3
Visionnage en Ligne Transaction à Distance
Appartements dans une tour de résidences du centre-ville de 110 étages à Business Bay avec un plan de paiement flexible Les résidences DWTN sont stratégiquement positionnées dans le triangle d'or de Sheikh Zayed Road, du centre-ville de Dubaï et de Business Bay. Cette Marvel architecturale offre une vue imprenable sur le centre-ville de Dubaï et...
TEKCE
1/19
700 000 €
Appartement à Cesme, Turquie
137 m2 4 3 2
Résidence Visionnage en Ligne Transaction à Distance
Appartements près de la mer à Çeşme avec de riches installations sociales Çeşme est une région de vacances dans l'ouest d'Izmir, connue pour ses plages de drapeau bleu et son air pur. Avec son cadre naturel, ses restaurants célèbres, sa cuisine unique, sa marina, son architecture et son charme historique, c'est l'une des zones les plus...
TEKCE
1/19
700 000 €
Appartement à Estepona, Espagne
142 m2 4 3 2
Résidence Visionnage en Ligne Transaction à Distance
Appartements et penthouses superbes avec vue sur la mer à Estepona Málaga Estepona, souvent appelé «Le jardin du Costa del Sol», est connu pour ses belles rues fleurines, ses peintures murales colorées et ses espaces publics verts qui donnent à la ville un look unique et accueillant. Il mélange la culture traditionnelle andalousie avec une...
TEKCE
1/18
700 000 €
Penthouse à Mijas, Espagne
134 m2 4 3 3
Résidence Visionnage en Ligne Transaction à Distance
Immobilier avec conception spacieuse dans la zone principale de Mijas Costa L'immobilier est situé à Mijas Costa. C'est une ville située entre Fuengirola et Marbella. Mijas Costa a un bel emplacement du littoral aux pieds de la montagne. Mijas Costa accueille de nombreuses plages de qualité et terrains de golf. Il s'agit d'un célèbre centre de...
TEKCE

Recherchez des propriétés dans l'application

Pointez l’appareil photo de votre smartphone vers le code QR pour installer l’application
Collections immobilières