
747 000 €
747 000 €
Maison au design contemporain avec piscine dans le quartier de Labin !
Non loin de la ville de Labin, une maison au design contemporain avec piscine est à vendre.
La maison située dans un quartier idyllique a été conçue dans le respect de la profession, des réglementations légales et des documents d'aménagement du territoire et a été construite selon les normes les plus élevées en matière de construction résidentielle.
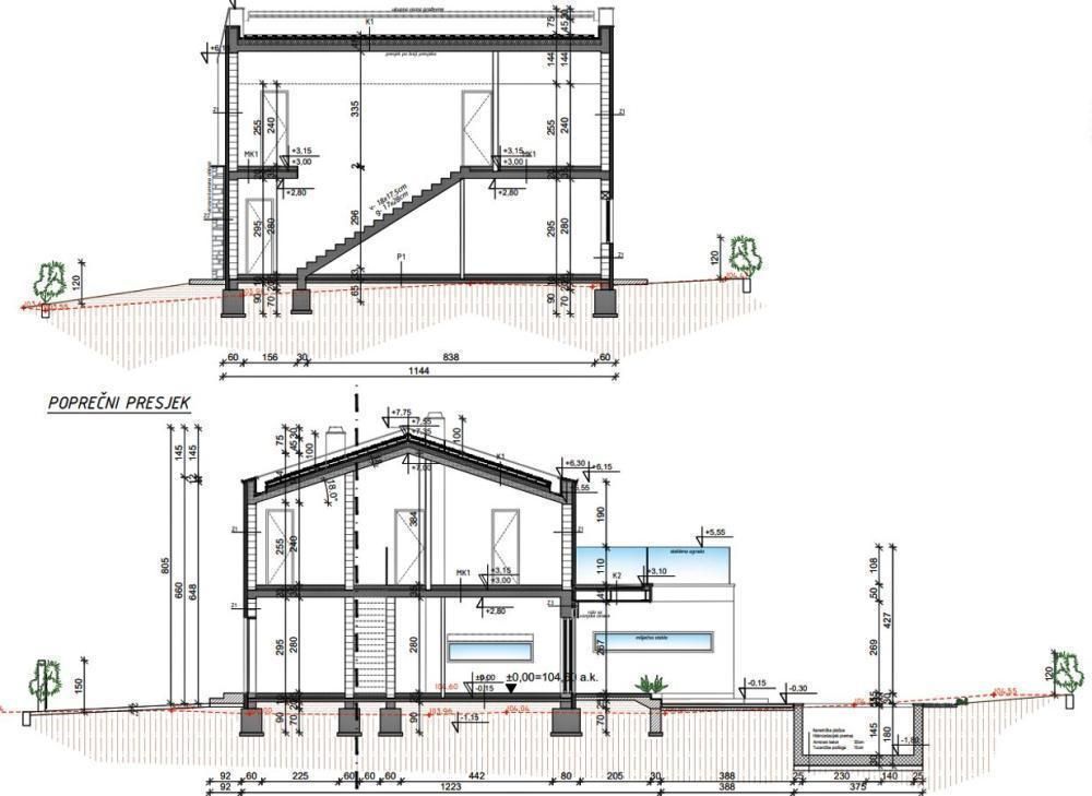
Avec son architecture apprivoisée, il ne perturbe pas l'environnement, mais crée une synergie entre l'environnement naturel, l'architecture istrienne traditionnelle et le design moderne. La tradition est symbolisée par la pierre et un toit à pignon, et l'expression contemporaine par une paroi vitrée de grand format.
La simplicité de conception de l’architecture traditionnelle a abouti à la création d’un plan d’étage compact et d’un espace aéré agréable.
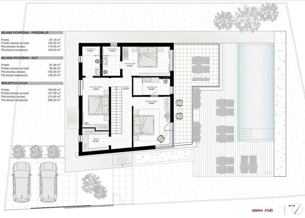
L'intérieur moderne, dans lequel des couleurs terreuses douces et claires se mêlent à un noir élégant, est divisé en deux étages d'une superficie nette totale de 191,58 m² et respire l'élégance et la simplicité et offre un haut niveau de confort.
Le rez-de-chaussée se compose d'un espace à aire ouverte qui réunit le salon, la salle à manger et la cuisine avec accès à une spacieuse terrasse couverte contenant une cuisine d'été.
Le plan d'étage du rez-de-chaussée est complété par une chambre avec sa propre salle de bain, des toilettes invités et une chaufferie.
A l'étage au 1er étage se trouvent trois chambres avec salles de bains privatives, une buanderie et une terrasse spacieuse.
La cour de 601 m². est entièrement clôturée et élégamment décorée de gazon et de plantes méditerranéennes, et la place centrale est occupée par une piscine de 37 m² avec un solarium.
Le prix indiqué se réfère à la phase clé en main avec sanitaires installés, armoires encastrées et cuisine avec appareils électroménagers.
Cette propriété parfaitement intégrée constitue une opportunité exceptionnelle pour une vie de famille confortable ainsi qu'un investissement dans le secteur de la location touristique.
Les frais supplémentaires à payer par l'Acheteur d'un bien immobilier en Croatie sont d'environ 7% du coût total de la propriété: taxe de transfert de titre de propriété (3 % de la valeur de la propriété), commission d'agence immobilière (3% + TVA sur commission), frais d'avocat (cca 1%), frais de notaire, frais d'enregistrement, frais de traduction officielle certifiée. Le contrat de l'agence immobilière doit être signé avant la visite des propriétés.