
1 472 000 €
1 472 000 €
| Prix de vente | 1 472 000 € |
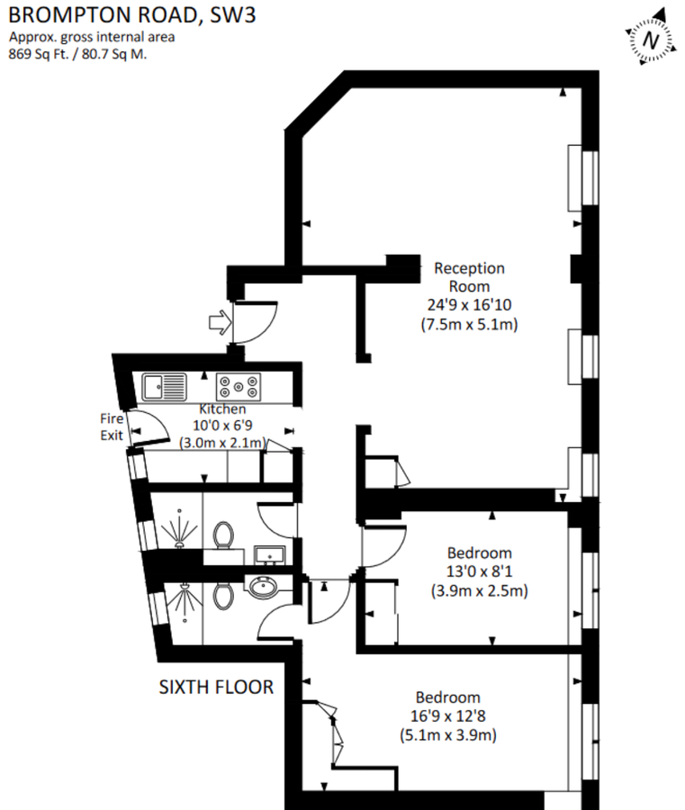
| Prix au m2 | 18 172.84 € |
| Surface | 81 m² |
| Nombre de pièces | 5 |
| Nombre de chambres | 2 |
| Nombre de salles de bain | 2 |
| Adresse | Royaume-Uni, Londres |
| Type | Appartement de quatre pièces et plus |
2 chambres, 2 salles de bains, 1 réception, 869 pieds carrés;
Appartement de deux chambres à vendre à Ovington Court, SW3. L'appartement est situé au sixième étage, accessible par ascenseur, dans cet immeuble prestigieux avec portique au coeur de Knightsbridge. L'appartement offre un grand espace de vie et est en bon état.
Cette propriété est idéale pour une résidence permanente, comme un pied-à-terre, ou comme investissement locatif au cœur de Knightsbridge. Il est situé au coin d'Ovington Gardens et de Brompton Road, ce qui permet un accès rapide au centre de Knightsbridge. ️
Harrods se trouve à seulement 0,3 km et la station de métro Knightsbridge est à 0,5 km de l'appartement.