
698 000 €
698 000 €
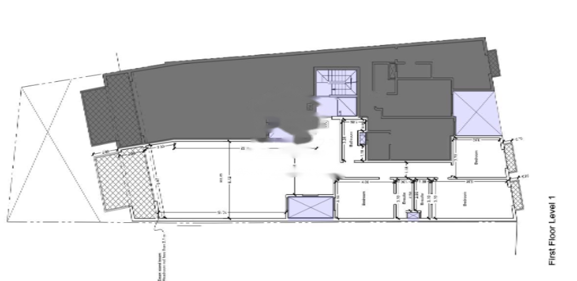
Chambres: 3, Salles de bains: 3, Superficie intérieure: 174 m², Surface extérieure: 22 m², Superficie totale: 196 m²
Un projet de luxe à la périphérie du quartier de Qala, situé au bord d'une falaise surplombant la vallée et le canal. Ce superbe appartement de 3 chambres (dont 2 avec salle de bain privative) et 3 salles de bain comprend une cuisine ouverte spacieuse avec un salon et salle à manger, ainsi qu'une terrasse de 22 mètres carrés avec une vue fascinante. ️
La propriété est proposée entièrement avec un haut degré de finition.