
551 325 €
551 325 €
Nous vous proposons un appartement dans le complexe résidentiel moderne Devana Park II, qui est situé sur la pente de Golovac dans l'une des zones les plus populaires de Ljubljana. Combinant le confort de la vie urbaine et la proximité de la nature, ce projet vous offre une occasion unique de devenir ses résidents.
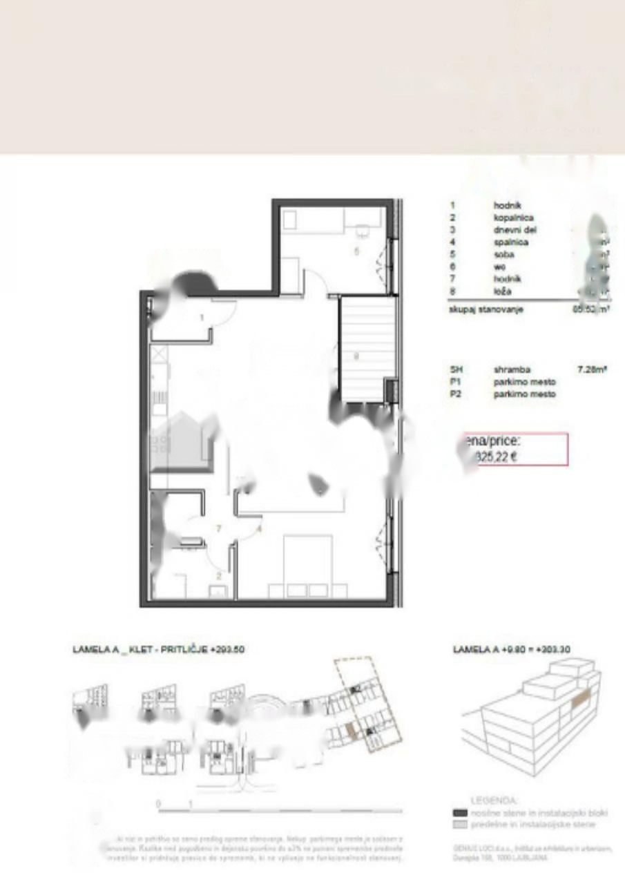
L'appartement est situé au deuxième étage, sa zone est de 91,23 m2. Il y a trois chambres, dont deux chambres et une salle de bain. Le balcon spacieux vous permet de profiter de belles vues sur le panorama de Ljubljana et les Alpes.
Le quartier vous fournira tout ce dont vous avez besoin pour une vie paisible près du centre-ville. Vous pourrez profiter pleinement de l'infrastructure urbaine sans renoncer à la paix et au confort de la nature entourant la région. Le centre de Ljubljana est facilement accessible, ce qui rend cette offre encore plus attrayante.
L'appartement est entièrement meublé et prêt pour une occupation immédiate. Il est équipé de technologies modernes et de matériaux premium, du chauffage sous le sol à la climatisation. Çons
Spécifications techniques:
Prix: 551,325.00 EUR