
1 800 000 €
1 800 000 €
Nous proposons à vendre une villa de luxe dans l'une des zones les plus pittoresques de Ljubljana - Rožna Dalina. Cette maison d'un étage avec sous-sol, rez-de-chaussée, deuxième étage et grenier se caractérise par un design moderne et une spacieuse. Les fenêtres panoramiques offrent une lumière naturelle abondante, offrant des vues sur l'environnement vert, qui semblent vous inviter à vous promener dans la zone forestière à côté du printemps.
Séjourner sur la terrasse est un plaisir particulier, où vous pouvez profiter d'un chant d'oiseaux et de regarder des cerfs gracieux Roe marcher dans la prairie derrière la maison. En allant à vélo, vous vous retrouverez au centre de la capitale en seulement 5 minutes, et en voiture, vous atteindrez la route de dérivation en 5 minutes, ce qui offre une excellente accessibilité des transports.
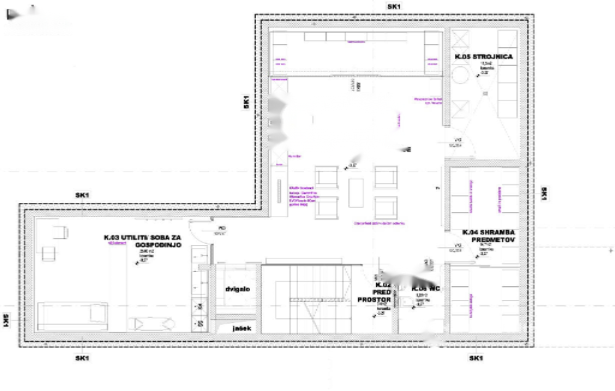
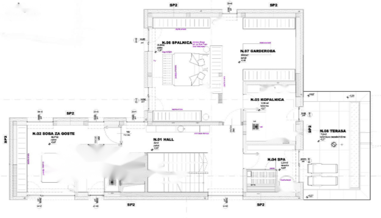
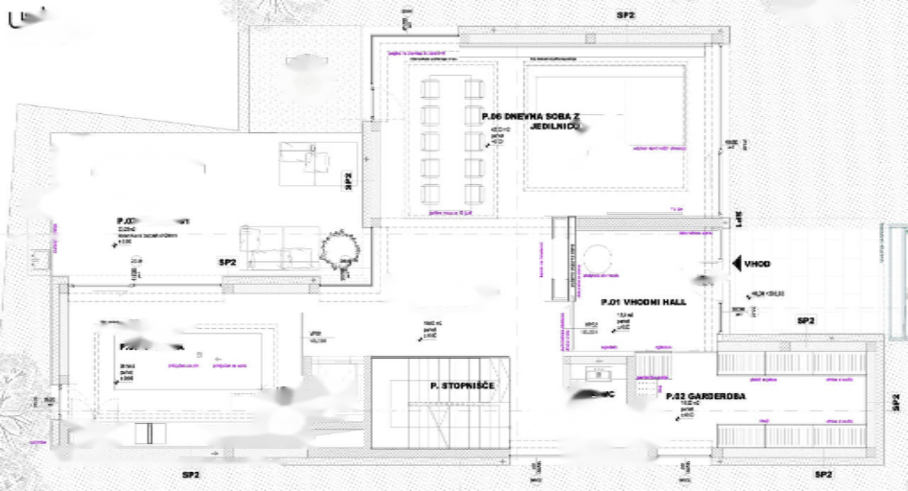
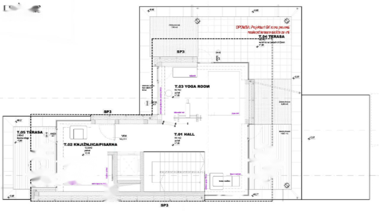
La parcelle de terrain de 824 m2 offre un grand espace pour un jardin et un grand parking. Les communications sont connectées au site. Il est vendu au stade de la préparation structurelle prolongée, avec une façade terminée, l'installation de portes d'entrée en mélèze et triples fenêtres isolantes à double vitrage avec des stores en aluminium. Le toit est protégé par la laine de pierre et recouvert de plaques en acier préfa spéciales.
Prix: 1 800 000 euros