Case economici all’estero

1/19
527 491 €
Villa sulla spiaggia di Bang Tao, Thailandia
376 m2 4 4
Visita online Transazione a distanza Pagamento in criptovalute
Caratteristiche chiave: -4 camere da letto, 5 bagni -piscina privata e jacuzzi -grafici terrestri da 284 a 400 m² -area costruita per 2 auto Opzioni
50 Lemons
1/19
527 491 €
Villa sulla spiaggia di Nai Harn, Thailandia
211 m2 4 4
Visita online Transazione a distanza Pagamento in criptovalute
Una villa in stile tailandese-balinese contemporaneo con 4 camere da letto e 4 bagni, una cucina separata e due soggiorni. Ideale per due piccole famiglie, questa villa offre una piscina condivisa. Ambientato in un giardino tropicale, offre l'ambiente perfetto per le feste con una spaziosa area della piscina. La villa è completamente arredata in...
50 Lemons
1/19
527 491 €
Villa sulla spiaggia di Bang Tao, Thailandia
340 m2 3 4
Visita online Transazione a distanza Pagamento in criptovalute
** Posizione del progetto e informazioni ** - ** Sviluppatore: ** Sirisa Property Co., Ltd - ** Indirizzo: ** Pasak 8/7, Thalang, Phuket - ** Area di progetto totale: ** 6,800 sq.m. * Numero di villa: ** 12 - ** Area di progetto totale: ** 6,800 sq.m. ** Numero: ** villaggio Stile: ** Tropical Modern Luxury - ** Tipo: ** ville da piscina,...
50 Lemons
1/18
528 000 €
Casa a Lubiana, Slovenia
185 m2
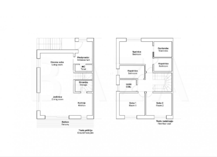
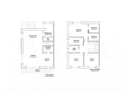
Portiamo alla tua attenzione una lussuosa casa completamente rinnovata con un'area di 185 m2 , situata nell'area di Dragogna. Questa proprietà unica è stata costruita in 1936 e rinnovata a fondo in 2002 . La casa occupa una trama di 606 m2 e si trova a cinque chilometri dal mare con vista sul mare. La casa è progettata per tre famiglie ed è...
MIRAG INVEST DOO
1/19
528 000 €
Villa a Alanya, Turchia
276 m2 4
Cittadinanza Visita online Transazione a distanza Pagamento in criptovalute
RestProperty
1/6
528 000 €
Casa a Paphos, Cipro
142 m2 2
Permesso di soggiorno con l’acquisto
La villa di 2 camere da letto di lusso si trova centralmente, a pochi minuti dal mare e la vista fantastica è ora disponibile per la vendita. Questa proprietà è dotata di riscaldamento a pavimento, top di vanità in marmo, cime in granito da cucina. Tutte le proprietà di Belveder sono tutte di grande valore per gli investimenti, considerando la...
Mercury Group
1/19
528 000 €
Casa a Tivat, Montenegro
176 m2 5 3 3
Permesso di soggiorno con l’acquisto
Red Feniks Montenegró
1/6
528 079 €
Casa a Sharja, EAU
308 m2 5 4 4
Permesso di soggiorno con l’acquisto Visita online Transazione a distanza
Townhouse e ville nella splendida comunità dell'isola View vicino alla laguna sulla costa di Sharjah! Cucine completamente arredate! Vicino alla spiaggia! Ottima posizione! Per la vita e gli investimenti! Troveremo alloggi con un tasso di mutuo o rata favorevole negli Emirati Arabi Uniti! Strutture: Laguna centrale, City Beach, piste da corsa...
DDA Real Estate
1/15
528 357 €
Villa sull'isola di Phuket, Thailandia
375 m2 4 3 4
Visita online Transazione a distanza Pagamento in criptovalute
In vendita dal proprietario, una nuova villa con 3 camere da letto nella prima fase del complesso privato del lusso. Viene venduto con un pacchetto di mobili completo e elettrodomestici. Messa in servizio della nostra villa alla fine di novembre 2023 (preparazione al 99%). La prontezza dell'intero complesso è gennaio 2024. Il costo della villa è...
Azure Home Co Ltd.
1/3
528 581 €
Casa a Paphos, Cipro
116 m2 2
Permesso di soggiorno con l’acquisto
Konia Panorama è uno dei progetti più impressionanti sviluppati da Costantinou Bros Properties nel pittoresco villaggio di Konia. Vista del mare panoramica Vista con 2 camere da letto camera da letto da 12 maestri con villa con en-suite1 WC, 1 doccia e 1 bagni da bagno piastrellati e piscina di nuoto Spaceprivate (opzionale).
Mercury Group
1/11
528 736 €
Villa a Canggu, Indonesia
280 m2 4 3 3
Aquamarine II (3 camere da letto) Prezzo: 620.000 USD Completamento: 50% area terrestre: 237 M & sup2; Area di costruzione: 280 M & sup2; pavimenti: 3 livelli Lease terrestre: 28 anni con opzione di estensione tasse: nessuna tassa aggiuntiva Pianta: 1 ° piano: soggiorno, pranzo e amp; Cucina, camera da letto con en-suite,...
SIA INVESTATE
1/19
529 000 €
Casa a Lubiana, Slovenia
137 m2 4
Ti presentiamo un magnifico immobile a bassa energia a due piani di nuova costruzione nell'area del Black Village, Lubiana. L'area totale della casa è di 136,5 m2 con una trama di terra di 229 m2. La casa sarà completata nel 2025 ed è un progetto moderno con un alto livello di efficienza energetica. Vantaggi principali: Un'opportunità unica...
MIRAG INVEST DOO
1/18
529 000 €
Casa a Pirano, Slovenia
140 m2
Ti invitiamo a esplorare il fascino di piran attraverso la proprietà di questa magnifica casa a schiera. Costruito nel 1900, copre un'area di 140 m2 ed è una casa a quattro piani con soffitta. La casa si trova nel cuore del pittoresco piran, dove le strade storiche sono combinate con lo stile architettonico mediterraneo. Grazie alla sua...
MIRAG INVEST DOO
1/19
529 000 €
Villa a Paphos, Cipro
216 m2 5 3
Permesso di soggiorno con l’acquisto
In vendita in una zona residenziale tranquilla e ricercata di Konia, Paphos, questa casa distaccata con 5 camere da letto meravigliosamente rinnovata offre la perfetta combinazione di comfort e funzionalità, ideale per la vita familiare. Situata accanto a un'area verde, la casa offre un ambiente tranquillo con ulteriore privacy. Al piano terra...
BLUE SKY HOUSES
Non hai trovato l’immobile giusto?

Riceverà una selezione personale di immobili secondo le Sue esigenze.

Lasciare richiesta
1/9
529 000 €
Villa a Las Montesinos, Spagna
120 m2 4 3 2
Permesso di soggiorno con l’acquisto
La splendida villa di lusso a La Herrada con piscina privata a Los Montesinos si trova su un grande appezzamento di oltre 400 m2 ed è una struttura a singolo piano progettata per fornire il massimo comfort e stile. La casa ha 3 camere matrimoniali, tutte con grandi finestre che consentono la luce naturale e si affacciano sul giardino privato....
KOALA PROPERTIES COSTA BLANCA SL.
1/12
529 000 €
Villa a Los Montesinos, Spagna
109 m2 3 2
Permesso di soggiorno con l’acquisto
Essence La Herrada è un sofisticato complesso residenziale composto da ville indipendenti e case in stile quad, tutte con 3 grandi camere da letto, situate nella tranquilla area residenziale di La Herrada, a Los Montesinos (Alicante). Questo sviluppo è ideale per coloro che cercano qualità, comfort e un ambiente senza rivali sulla Costa Blanca....
SUNNIER HOMES
1/19
529 000 €
Villa sulla Costa Blanca, Spagna
164 m2 3 3
Permesso di soggiorno con l’acquisto
La villa di Fondestrat è un'opportunità unica per godere della combinazione perfetta di lusso e comfort. Questa moderna casa semi-indipendente con un'area di 164 m2 su una trama di 255 m2 è caratterizzata da finiture di alta qualità e design elegante. La moderna cucina a pianta aperta combinata con il soggiorno crea un'atmosfera spaziosa e...
VYM Canarias
1/18
529 000 €
Villa sul Lago di Garda, Italia
180 m2 5 3 2
Visita online Transazione a distanza
Villa a schiera di dimensioni eccellenti situate a pochi passi dal centro storico di Desenzano del Garda e sul lungomare, adiacente ai servizi e a tutte le strade principali. Soluzione ideale come prima casa per le famiglie che cercano una residenza vicino al lago e tutti i suoi servizi. La casa è sviluppata su diversi livelli ed è composta...
GH Estate
1/18
529 000 €
Casa a Lloret de Mar, Spagna
230 m2 5 4 3
Permesso di soggiorno con l’acquisto Mutuo da 2.15%
Una casa con piscina a Canyelles Montgoda (Lloret de Mar), in un luogo tranquillo e pacifico, circondata da alberi da frutto e fiori. Include un ampio soggiorno, cucina attrezzata, 4 camere da letto e 3 bagni moderni. Caratteristiche aggiuntive: aria condizionata, riscaldamento da una caldaia a gas collegata alla rete di approvvigionamento a gas...
LUXBARCELONA
1/19
529 223 €
Villa a Patong, Thailandia
182 m2 3 3
Visita online Transazione a distanza Pagamento in criptovalute
Descrizione del progetto Uno sviluppo esclusivo di 16 ville a bipichine private a due piani, ambientate in una tranquilla area verde di Patong. A soli 5-7 minuti in auto verso la spiaggia, centri commerciali e ristoranti. Dimensioni della trama: 182–256 mq layout: parcheggio spazioso in piscina, cucina isola Proprietà: Freehold o Leashold...
50 Lemons
1/19
529 223 €
Villa a Thalang, Thailandia
307 m2 3 3
Visita online Transazione a distanza Pagamento in criptovalute
Caratteristiche chiave: Camere da letto: 3 bagni: 3 Area costruita: 307 sq.m Strongma: 540 sq.m piscina privata: Metotes Terrace: 51,8 piedi quadrati con giardino paesaggistico e effetto di illuminazione "stellato" architettura e design La villa presenta un elegante layout a un unico piano con finestre panoramiche che inondano lo spazio con luce...
50 Lemons
1/10
529 744 €
Villa a Phuket, Thailandia
370 m2 3 3 3
Visita online Transazione a distanza Pagamento in criptovalute
Il progetto è sotto gli auspici dell'unificazione con la natura; La maggior parte dell'area verde è stata conservata sul territorio del complesso. Ogni villa ha giardini agricoli sul tetto. Le ville vengono presentate con 2-4 camere da letto su due piani. Un centro sanitario, yoga e sauna, un caffè e un ristorante e una sala multifunzionale...
VillaCarte
1/16
530 000 €
Casa a Lubiana, Slovenia
250 m2 6 5 2
Proponiamo in vendita una casa spaziosa e luminosa con terrazza a Verkhnyaya Shishka, situata vicino al centro di Lubiana e vicino a Rožnik. La struttura è stata costruita nel 1961 e adattata nel 2015. La casa, situata su un terreno di 120 m2, occupa tre piani e un seminterrato ed è orientata a sud-ovest, sud e nord-est. Al piano interrato si...
MIRAG INVEST DOO
1/16
530 000 €
Villa a Paphos, Cipro
154 m2 3 2
Permesso di soggiorno con l’acquisto
Il progetto è composto da 20 ville private separate con tre e quattro camere da letto e un ampio giardino condominiale paesaggistico. Le soluzioni di design moderno garantiscono privacy e comfort ai residenti e alle loro famiglie. Il progetto offre l'opportunità di scegliere tra stili architettonici moderni e modernisti e finiture di alta...
BLUE SKY HOUSES
1/19
530 000 €
Casa a Lubiana, Slovenia
136 m2 5 3 2
Proponiamo in vendita una moderna casa a due piani in un nuovo edificio: Chernaya Vse, quartiere Rudnik di Lubiana. Questa casa con una superficie totale di 136,50 m2 sarà completata nel 2025 e si trova su un terreno di 209 m2. La casa è progettata per il comfort abitativo e il risparmio energetico. L'eccellente orientamento da ovest a est e...
MIRAG INVEST DOO
1/19
530 000 €
Villa a Dolores, Spagna
137 m2 3 3
Permesso di soggiorno con l’acquisto
Scopri questo nuovo sviluppo di ville esclusive a Dolores (Alicante), una tranquilla enclave nell'entroterra della Costa Blanca che unisce natura, comfort e stile contemporaneo. Questo progetto boutique è composto da sole tre abitazioni uniche: una villa unifamiliare e due ville bifamiliari, tutte dal design elegante e moderno e finiture di alta...
SUNNIER HOMES
1/18
530 000 €
Villa a Alanya, Turchia
180 m2 4 3 3
Cittadinanza Visita online Transazione a distanza
Villa con quattro camere da letto con vista sul mare, nel castello e nelle montagne nella zona di Bektash. L'area è adatta per un permesso di soggiorno. Offriamo in vendita una villa con quattro camere da letto distaccata a tre piani con una superficie totale di 180 m2, una trama di 200 m2. La villa è stata costruita nel 2009. Questa villa...
TURKEY INVEST PROPERTY
1/6
530 000 €
Casa a Lubiana, Slovenia
160 m2 7 4 2
Offriamo in vendita una casa con una terrazza di 160 m2, situata nella zona verde di Vrhovci, a Lubiana. Questa casa accogliente, costruita nel 1968 e rinnovata nel 2006, si trova su una trama di 225 m2. La casa occupa tre piani: il piano terra, due piani superiori e la possibilità di creare una soffitta. C'è un giardino con una terrazza...
MIRAG INVEST DOO
1/13
530 000 €
Villa a Paphos, Cipro
161 m2 4 3 3
Permesso di soggiorno con l’acquisto Transazione a distanza
Panoramica del progetto Benvenuti in una collezione esclusiva di 12 ville contemporanee immerse nelle tranquille colline di Konia, Paphos. Ogni villa offre 3 ampie camere da letto, una piscina privata e una vista accattivante sul mare, creando il perfetto equilibrio tra comfort, stile e vita serena mediterranea. Queste case progettate con...
Foutina
1/15
530 000 €
Casa a Lubiana, Slovenia
136 m2 4 3 1
Offriamo in vendita una nuova unità residenziale a due piani con un'area di 136 m2, situata nella pittoresca area di Chernaya Dolina, tra i magnifici paesaggi del parco naturale. La casa sarà commissionata nel 2025. Il terreno di 292,5 m2 offre opportunità spaziali per una vita comoda. Le principali caratteristiche della struttura includono...
MIRAG INVEST DOO

Cerca gli immobili nell'app

Inquadra il QR code con la fotocamera dello smartphone per scaricare l'app
Raccolte di immobili