
240 000 €
240 000 €
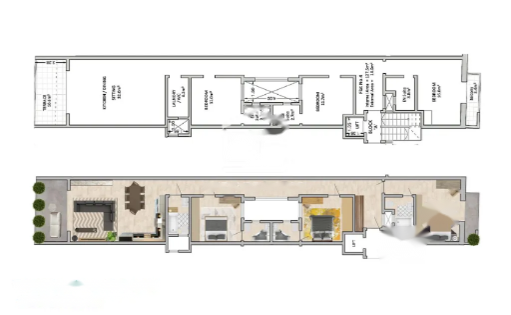
Camere da letto: 3, Bagni: 2, Superficie interna: 128 mq, Superficie esterna: 14 mq, Superficie totale: 142 mq
Questo complesso residenziale si trova nel cuore di Victoria, la capitale di Gozo, il che lo rende un eccellente progetto di investimento in affitto, soprattutto considerando la distanza a piedi dalla Barts University.
Il complesso si distingue come esempio di edilizia moderna, combinando accessibilità, spaziosità, qualità e design innovativo. Il progetto offre una scelta di appartamenti con 3 camere da letto e ulteriori garage sotterranei, fornendo numerosi posti auto per i residenti.
La disposizione di ogni appartamento è pensata, dividendo lo spazio nelle zone principali: giorno e notte. Entrando nell'appartamento, il corridoio conduce a tre ampie camere da letto, ciascuna con il proprio bagno, e al bagno principale riccamente decorato, che aggiunge comodità agli ospiti. La maggior parte degli appartamenti comprende anche una pratica lavanderia/ripostiglio, aumentando la funzionalità dello spazio abitativo.