
82 500 €
82 500 €
Commercial Properties in a High-Demand Area o
Proprietà commerciali situate nella regione Avsallar di Alanya, una popolare destinazione turistica frequentemente scelta dagli stranieri, si distingue per i loro servizi sociali e la vicinanza alle spiagge.
Le proprietà commerciali in vendita ad Alanya sono 100 m da un mercato, una farmacia, un centro sanitario familiare e ristoranti, a 1 km dal mare, a 20 km dal centro di Alanya e 60 km dall'aeroporto di Gazipaşa.
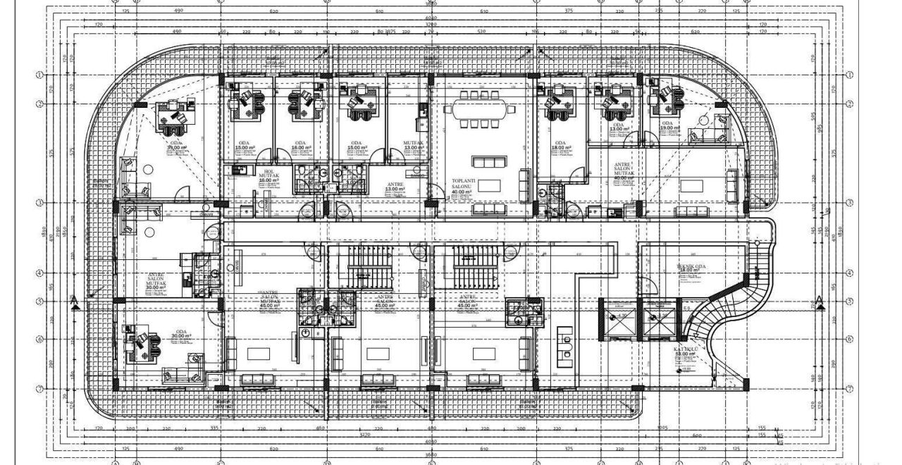
Il business center, costruito su una superficie totale di 5.994 mq, è composto da 3 blocchi. Il blocco C ha un parcheggio interno a 45 veicoli nel seminterrato. Il business center, che ha 21 negozi e 26 uffici, si distingue con il suo moderno design esterno. I negozi e gli uffici sono offerti in vendita in diverse dimensioni e funzionalità.