
550 000 €
550 000 €
We offer for sale a luxury modern villa located in a picturesque location of Polyana, above Opatija. The property is a two-storey villa with a total area of 185 m2 and includes separate air conditioning systems for cooling and heating.
The interiors are made of noble materials: marble and oak parquet with oil and brush treatment. The villa is equipped with underfloor and wall heating, a fresh air supply system, filtration, as well as a central climate control system and a hybrid heat pump. It is controlled through a smart home and smart locks.
The exterior includes a heated swimming pool with a hydro massage system and infinity showers, a sunbathing area and a gazebo with a fireplace for outdoor dining. Additionally, there is a lounge with a fireplace, double-glazed windows with triple glazing, two parking spaces with charging for electric vehicles and a modern security system with alarm and video surveillance.
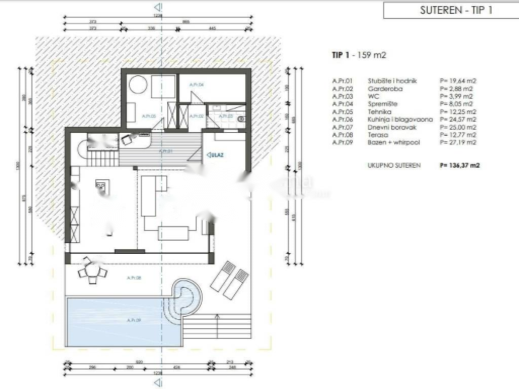
The total area of the enclosed spaces is 160.26 m2. The lower level covers an area of 136.37 m2, and the first floor is 67.09 m2, the total area of the villa is 203.46 m2.
The villa is located in a peaceful and secluded location with wonderful panoramic views of the surrounding area. An excellent choice for those who value comfort and privacy.