
2 400 000 €
2 400 000 €
| Business expenses | |
|---|---|
| Not included in the price | |
| Commission fee | 7.14 % |
| Tax | 6 % |
| Notary Services | 1 % |
| Other expenses | 0.5 % |
We present to your attention a plot of land with a construction project in Berlin, in the Pankow area.
The building permit has been received.
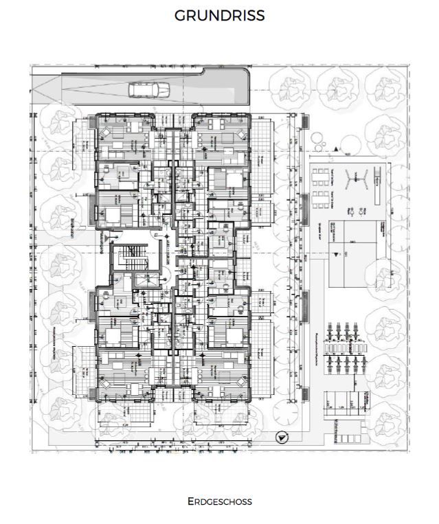
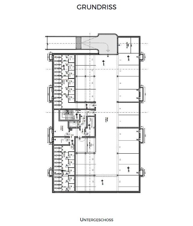
The project provides for the construction of an apartment building with a total area of about 2,224 square meters, with 20 residential units and 20 underground parking spaces, on a plot of about 1,560.00 square meters.
The cost is 2,400,000 Euros.
The land area is about 1,560 sq.m.
The planned construction area is 2,224 sq.m.
Number of apartments — 20
Underground parking spaces — 20
The Wilhelmsru district in Pankow, originally a suburb of villas, is now an attractive green neighborhood between the districts of Pankow and Reinickendorf. Street trees, gardens and small shops characterize the image of this idyllic part of the city. The historic country houses and villas, some of which have survived to this day, were built mainly in the late 19th and early 20th centuries.
There are numerous recreational opportunities in the immediate vicinity, including the Wilhelmsruer Lake, the Schoenholzer Heide Public Park, the Burgerpark, the Schlosspark and the Punks summer pool.
Public and private kindergartens, schools and doctors are within walking distance. Convenience stores can be found at the intersection of the main street.
Although Wilhelmsru is in a very green place, the transport links here are excellent. A bike ride through parks and gardens to the Berlin city center takes only half an hour. Driving by car or public transport will take the same amount. The Wilhelmsruh S-Bahn Station is just 1 km away. The bus stop is right outside the house.
If you are interested in this and other facilities, you can submit a request. Our company's staff will contact you in the near future and provide you with the facilities that meet your request.
Don't miss the opportunity to purchase a plot of land in Berlin!