
450 000 €
450 000 €
| Business expenses | |
|---|---|
| Not included in the price |
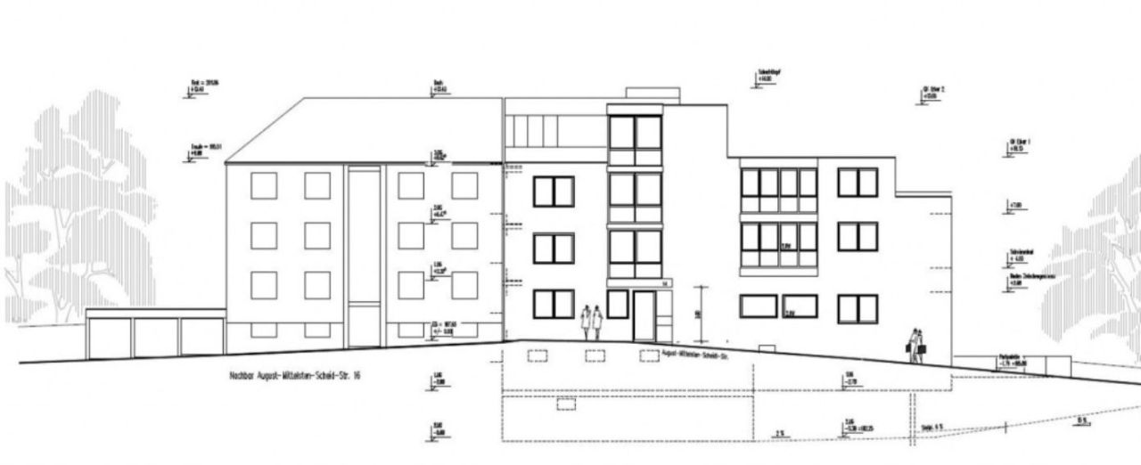
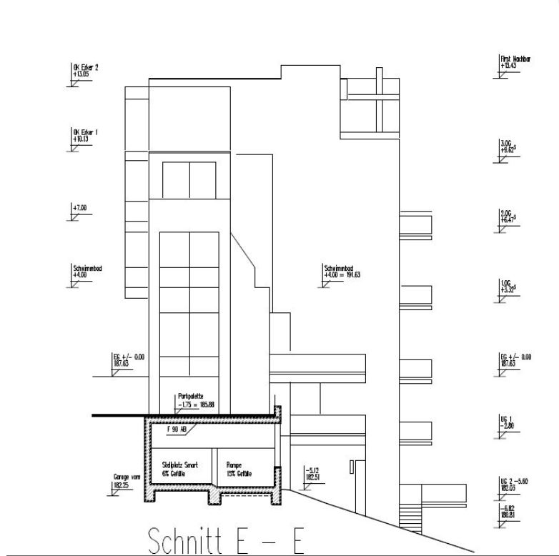
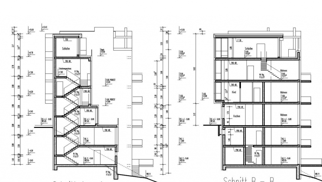
Germany. Wuppertal. Land for construction of an apartment building. Land in 42283 Wuppertal, 563 m² Property ID: 17861 Online viewing Remote purchase €450,000 €799/m² Property type: Land Total area: 563 m² Property status: Available Building permit available. The plot is planned for construction of a residential building with 11 apartments, with a total area of 565 m². The project includes the required number of parking spaces in an underground multi-level parking garage. Buyer's commission is +4.76% of the property price. Details upon request. We will sell your apartment or house. We have a selection of apartments and houses to suit various budgets, including commercial properties.