
580 000 €
580 000 €
| Business expenses | |
|---|---|
| Not included in the price |
| Credit conditions | |
|---|---|
| Possible payment by installments |
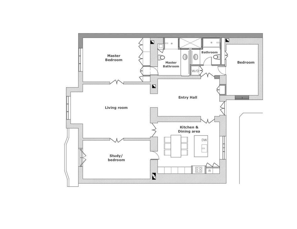
Hungary. Budapest. Apartment of 155m2 in the very center of the city. 26 Kertész U., Budapest, Budapest 1073 bedrooms 3 bathrooms 2 EUR €580,000 26 Kertész U., Budapest, Budapest 1073 For sale this magnificent, newly renovated apartment, located on the 2nd floor of a classic turn-of-the-century building, the apartment is incredibly bright, spacious and cozy. The property is located on Kertsch Street, within walking distance of the famous Franz Liszt Square and the Academy of Music, in the heart of the city, just a few steps from the best cafes, restaurants, shops and convenient transport interchange in Budapest. This apartment of over 155 square meters has a large entrance hall with a utility room, a large, spacious kitchen with a dining area for entertaining. The living room is reasonably sized and sunny, in addition there are two bedrooms, both with their own bathrooms and a study that can be converted into a third bedroom, and finally a balcony for relaxing completes the picture of an ideal layout. The design of the apartment was the result of a collaboration between L.V. Rowe from California (architect) and Esther Bertoti from Budapest (interior designer), in which the classic beauty of the Art Nouveau style and the most modern mechanical functions, kitchen and bathrooms complement the original style. The house has been renovated with the utmost care and incredible attention to detail, from the custom built-in wardrobes and kitchen to the beautiful balcony, spacious bathrooms, carefully selected artwork and posters, and the fantastic living room. All the windows have been repaired and updated, all the glass is new. The new glass has double layers of energy insulation. The windows in the master bedroom have special soundproof panes to keep the owner calm. The interior window frames have special energy insulation around the edges. During the renovation, all heating, plumbing, electrical and gas lines were replaced, and underfloor heating was installed in the bathrooms. This apartment can make you forget about the bustling capital, as if you really feel at home in the city center. The price includes built-in furniture and a kitchen. For more information about this facility or to schedule a viewing, please contact us. Area 155.00 m2 3 bedrooms, 2 bathrooms Address 26 Kertész U., Budapest, Budapest 1073 We will sell your apartment or house. There is a choice of apartments and houses in various budgets, including commercial ones.