
266 000 €
266 000 €
Bedrooms: 2, Bathrooms: 3, Inside Area: 178 sqm, Outside Area: 113 sqm;
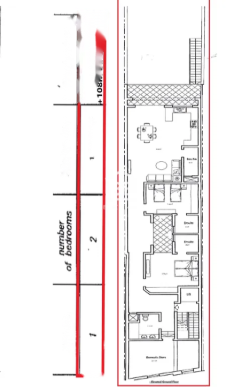
Victoria Gozo: New on the market is a raised ground floor apartment located in one of the most beautiful villages of Gozo. The apartment is sold as a shell and is fully owned. It is close to all amenities. This facility will be flooded with natural light and includes a kitchen, living and dining areas leading to a large backyard with an additional garden of 103 sq.m.
The apartment has two double bedrooms, each with its own bathroom, a courtyard, a storage room and a main bathroom. Optionally, garages are also available for an additional fee.
This is a great opportunity for first-time buyers or for rental investments. The object is worth your attention.