
549 000 €
549 000 €
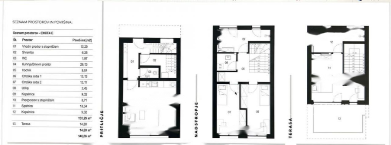
A modern new house with a terrace, located in the prestigious area of Hiv, Ljubljana, offers comfort and high quality of life in an urban environment. The house area is 148.06 m2, and the land plot is 170.97 m2. This three-storey house is equipped with everything necessary for convenience and privacy.
This new building, scheduled for completion in 2024, is made using high-quality environmentally friendly materials and energy-saving technologies. The underfloor heating system and controlled ventilation will ensure a comfortable microclimate and fresh air throughout the day. Preparing for the installation of a solar power plant makes the house even more energy efficient.
The area offers excellent infrastructure: near a kindergarten, a school, a pharmacy, a post office, a shopping center and other facilities. The quick access to the Ljubljana Vič motorway interchange (less than 1 km) and the center of Ljubljana (2 km), as well as the possibility for walking and cycling along the surrounding routes, make this place particularly attractive. The benefits include a safe and well-maintained neighborhood without noise.
Price: 549 000,00 EUR