
1 050 000 €
1 050 000 €
Detached Luxury Villas with Pools in Finestra
Luxurious modern villas are situated in Finestrat, a picturesque town located in the province of Alicante, in the Valencian Community of Spain. Nestled between the mountains and the Mediterranean Sea, it offers a unique blend of scenic beauty, history, and modern amenities. The town is divided into two main areas: the historic old town, which is situated inland at the foot of the imposing Puig Campana mountain, and the coastal area known as Cala de Finestrat.
These villas for sale in Finestrat are situated an 8-minute drive from the renowned Playa de Poniente, a favorite beach spot in Benidorm. They are a short 10-minute drive to a wide array of amenities, including restaurants, pharmacies, a medical center, shopping centers, and exciting theme parks in Benidorm. Additionally, Alicante Airport is easily accessible within 40 minutes via the AP-7 highway, making air travel a breeze.
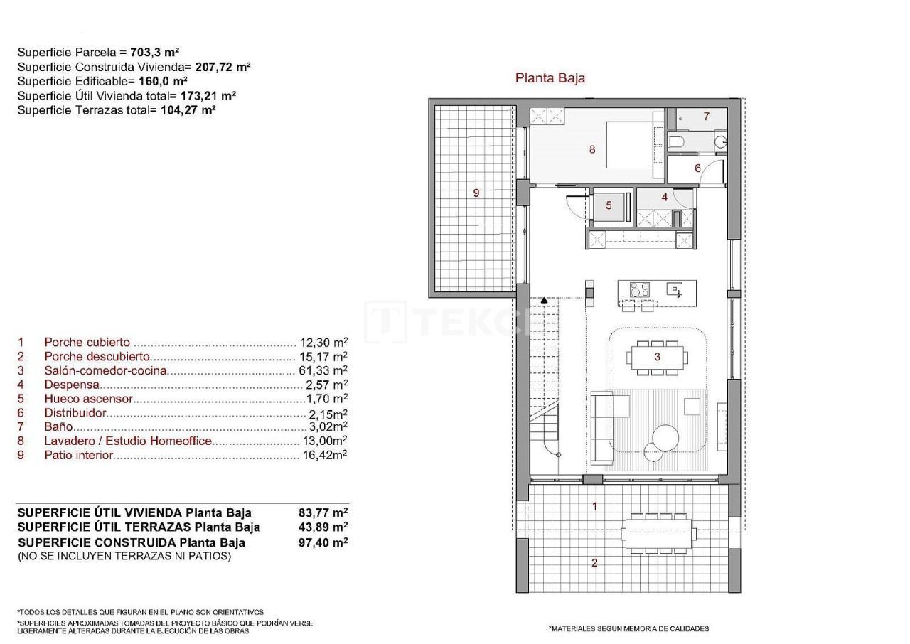
These modern homes come on plot sizes varying between 542 and 713 m², there is ample space for comfort and relaxation alongside the off-street parking and the private swimming pool.
These luxury villas have two models;
Inside the 3 bedroom model on the ground floor, you have a spacious bedroom, a bathroom with a walk-in shower, an open-plan kitchen and dining area, a storage room, and a large living area with French-style windows that allow in ample natural light. Upstairs on the first floor, you have two spacious bedrooms both with fitted wardrobes and en-suite bathrooms.
The 4-bedroom model has an additional floor with another bedroom that also has an en-suite bathroom.